Mieszkanie na sprzedaż
| Lokalizacja |
Szczecin Centrum ul. Majora Władysława Raginisa |
|
|---|---|---|
| Numer oferty | INS21937 | |
| Rodzaj budynku | Budynek apartamentowy | |
| Rok budowy | 2016 | |
| Materiał | Cegła | |
| Liczba pokoi | 3 | |
| Powierzchnia | 70 m2 | |
| Cena | 799 000 zł |
Mam przyjemność zaprezentować Państwu przestronne, klimatyzowane mieszkanie ok. 71 m2 w inwestycji Nautica przy ul. Raginisa w Centrum Szczecina, wraz z miejscem postojowym w garażu oraz parkingiem za szlabanem, dostępnym dla gości.
Obecnie lokal wykończony jest jako nowoczesny gabinet lekarski, fizjoterapeutyczny lub kosmetyczny (jest odbiór Sanepidu) z możliwością łatwej zmiany funkcjonalności na mieszkalną. Ściany gładzone i pomalowane, w oknach rolety drewniane wewnętrzne i aluminiowe zewnętrzne. na podłodze w całym mieszkaniu kafle drewno podobne. Drzwi wewnętrzne z zamkami magnetycznymi firmy POL-SKONE (bdb. jakości).
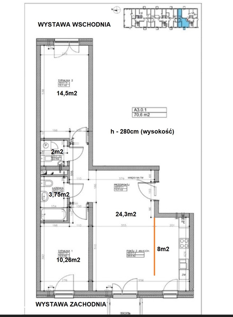
PARAMETRY NIERUCHOMOŚCI Lokal 3-pokojowy o bardzo funkcjonalnym układzie - obszerne dwa pokoje, ustawny i przestronny salon z balkonem oddzielna kuchnia z oknem, dwie łazienki, panoramiczne aluminiowe okna. Wygodne wejście bez schodów na wysokości gruntu.
ROZKŁAD
Przedpokój
Salon: 24,3m2 (690x350) z wyjściem na balkon ok. 2-3m2 - okna zwrócone na zachód
Kuchnia: 8m2 (421x190) - można ją łatwo połączyć z salonem i utworzyć przestronny salon z aneksem kuchennym o pow. 32,30m2
Pokój 1: 10,26m2 (375x273) - okna zwrócone na zachód
Pokój 2: 14,50m2 (532x273) - okna na wschód
WC1: 2m2 (144x144)
WC2/łazienka: 3,74m2 (251x149) - można połączyć dwa pomieszczenia i utworzyć ok. 6m2 łazienkę.
Do lokalu przynależy wygodne miejsce parkingowe w garażu podziemnym - płatne dodatkowo 70 000 PLN.
LOKALIZACJA I KOMUNIKACJA
Śródmieści/Centrum to od lat jedna z najbardziej pożądanych dzielnic Szczecina. Okolica tętniąca życiem, niedaleko znajduje się Park Żeromskiego, CH Galaxy, Plac Grunwaldzki oraz mnogość sklepów i lokali usługowych. Linie tramwajowe, autobusowe oraz usytuowanie w zacisznej enklawie dojazdu do głównych arterii pozwalają w łatwy sposób dostać się w każde miejsce Szczecina, czyniąc mieszkanie bardzo atrakcyjnie skomunikowanym.
Na osiedlu znajduje się parking samochodowy oraz stojak rowerowy.
Apartament w inwestycji Nautica dewelopera SGI przy ul. Raginisa to propozycja dla osób ceniących dobrze skomunikowaną lokalizację, zapewniającą bliskość głównych punktów Szczecina, nowoczesny standard, szlachetne materiały i komfortową przestrzeń z widokiem na zieleń. Dostosowanie do prowadzenia działalności medycznej, terapeutycznej czy kosmetycznej pozwala niemal od razu rozpocząć działalność. Uniwersalna inwestycja - zarówno biznesowa, a po szybkim i prostym dostosowaniu dostosowaniu - idealna do zamieszkania.
Zapraszamy na prezentację. Klucze w biurze.
| Rodzaj oferty | Mieszkanie na sprzedaż | ||
|---|---|---|---|
| Liczba pokoi | 3 | ||
| Liczba łazienek | 2 | ||
| Liczba pięter | 6 | ||
| Powierzchnia | 70 m2 | ||
| Cena | 799 000 zł (11 317 zł/m2) | ||
| Forma prawna | Własność | ||
| Forma prawna gruntu | Własność | ||
| Rodzaj budynku | Budynek apartamentowy | ||
| Rok budowy | 2016 | ||
| Droga dojazdowa | Asfaltowa | ||
| Materiał | Cegła | ||
| Stan budynku | Idealny | ||
| Rodzaj ogrzewania | co miejskie | ||
| Komunikacja | tramwaj, autobus | ||
| Odległość od centrum miasta | 1 km | ||
| Dostępne w okolicy | bank, fitnes, szkoła, przedszkole, restauracja, centrum handlowe, plac zabaw | ||
| Dodatkowo | przystosowane dla niepełnosprawych    internet    telewizja kablowa    klimatyzacja    winda    recepcja    ochrona    monitoring     |