Dom na sprzedaż
| Lokalizacja | Goleniów | |
|---|---|---|
| Numer oferty | MNI22003 | |
| Rok budowy | 2024 | |
| Materiał | Beton | |
| Liczba pokoi | 4 | |
| Powierzchnia | 137 m2 | |
| Działka | 500 m2 | |
| Cena | 680 000 zł |
Zapraszamy do zapoznania się z najnowszą ofertą SPRZEDAŻY lokalu mieszkalnego w zabudowie bliźniaczej na kameralnym osiedlu, zlokalizowanym przy ul. Słowackiego w Goleniowie.
Przedmiotem sprzedaży jest segment budynku w stanie deweloperskim, wybudowany w technologii tradycyjnej na podstawie projektu "DOM W CYKLAMENACH 5" z niewielkimi modyfikacjami. Projekt charakteryzuje się prostą, zwartą bryłą. Idealny dla rodziny 2+2 lub 2+3.
Położony na działce o pow. ok. 500 m2 (dla jednego lokalu), z pośrednim dostępem do drogi publicznej poprzez utwardzoną drogę wewnętrzną.
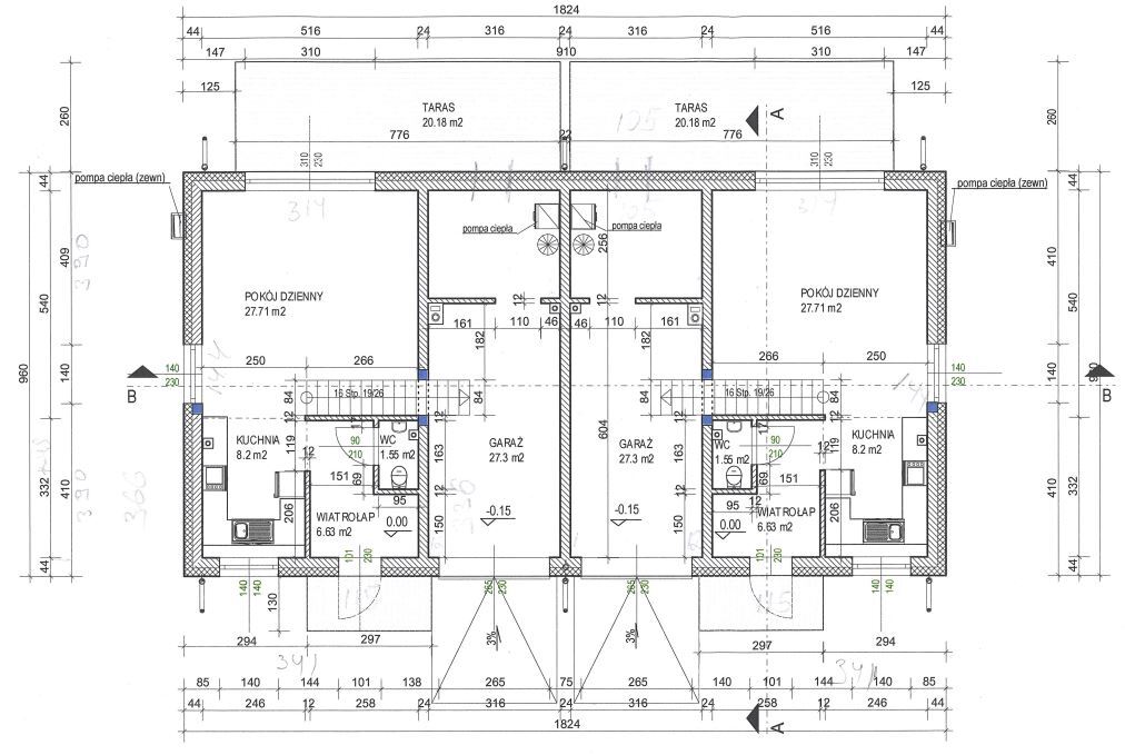
Lokal mieszkalny - parter + poddasze użytkowe, o łącznej pow. użytkowej 137,07 m2 (w tym pow. mieszkalna 109,77 m2 + garaż 27,30 m2)
Składa się z następujących pomieszczeń:
PARTER (pow. użytkowa z garażem 71,39 m2):
- wiatrołap 6,63 m²
- salon 27,71 m²
- kuchnia 8,20 m²
- WC 1,55 m²
- garaż 27,30 m²
PODDASZE UŻYTKOWE (pow. użytkowa 65,68 m² :
- sypialnia 1 - 8,70 m²
- sypialnia 2 - 11,14 m²
- sypialnia 3 - 15,94 m²
- łazienka 8,70 m²
- garderoba 4,24 m²
- przedpokój 17,46 m²
KONSTRUKCJA:
- Fundamenty - ławy fundamentowe betonowe B 20 zbrojone,
- Ściany fundamentowe - bloczki betonowe,
- Ściany konstrukcyjne zewnętrzne - Solbet,
- Ściany działowe - Solbet,
- Ocieplenie ścian zewnętrznych - styropian grafitiwy 18 cm,
- Strop - płyty Żerańskie,
- Schody wewnętrzne - jednobiegowe, żelbetowe,
- Pokrycie dachu - blacha na rąbek,
- Docieplenie stropu - wełna mineralna,
- Docieplenie dachu - piana PUR,
- Tynk elewacyjny silikatowy, puc,
STANDARD WYKOŃCZENIA
- drzwi wejściowe Wiśniowski,
- brama garażowa Wiśniowski segmentowa wraz z napędem,
- okna PCV 3-szybowe Wiśniowski,
- żaluzje fasadowe,
- instalacja - elektryczna, wodna, kanalizacyjna, RTV,
- system ogrzewania podłogowego w całym domu,
- podjazd i ścieżka do domu - kostka brukowa
- taras wykonany z kostki brukowej,
- pompa ciepła firmy Bosch,
Budynek przygotowany dla klientów wymagających, gdyż została przygotowana:
- instalacja do podłączenia paneli fotowoltaicznych,
- instalacje do podłączenia klimatyzacji,
- przewody kominowe do podłączenia kominka,
Media - pełne uzbrojenie - woda, kanalizacja sanitarna, prąd.
Możliwość wykończenie nieruchomości POD KLUCZ - cena do indywidualnego ustalenia z właścicielem.
ZAPRASZAMY NA PREZENTACJE i DO SKŁADANIA OFERT ZAKUPU !!!
| Rodzaj oferty | Dom na sprzedaż | ||
|---|---|---|---|
| Liczba pokoi | 4 | ||
| Liczba łazienek | 1 | ||
| Powierzchnia | 137 m2 | ||
| Działka | 500 | ||
| Cena | 680 000 zł (4 960 zł/m2) | ||
| Forma prawna | Własność | ||
| Forma prawna gruntu | Własność | ||
| Rok budowy | 2024 | ||
| Droga dojazdowa | Polna droga | ||
| Materiał | Beton | ||
| Stan budynku | Stan deweloperski | ||
| Rodzaj ogrzewania | pompa ciepła | ||
| Odległość od centrum miasta | 2 km | ||
| Dodatkowo | ogród     |