POWIERZCHNIA (M²)

CENA ZA M²

PIĘTRO

LICZBA POKOI

ROK BUDOWY

RYNEK

NUMER OFERTY

Poprzednia oferta
Powrót
Następna oferta

Bliźniaki 2 min od Stargardu - Promocja do 30.06!

Dom na sprzedaż

Lokalizacja Żarowo
Rubinowa
Numer oferty 187/11683/O
Rok budowy 2025
Materiał Mieszany
Liczba pokoi 5
Powierzchnia 127 m2
Działka 500 m2
Cena 599 000 zł

Opis

PROMOCJA - pompa ciepła w cenie!

Przedstawiamy Państwu domy w zabudowie bliźniaczej z pompą ciepła oraz garażem w bryle budynku


Świetny układ pomieszczeń - garaż w bryle budynku - Atrakcyjna lokalizacja

Rezerwuj i ciesz się możliwością dostosowania nieruchomości do swoich potrzeb na każdym etapie! 

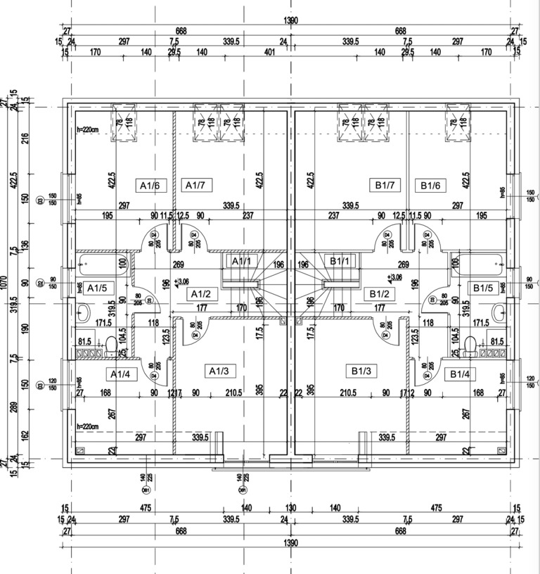
W sprzedaży dom w zabudowie bliźniaczej o pow. całk. 127,66 m2, użytkowej 120 m2 na działce 500 m2  w świętej lokalizacji ul. Rubinowa Żarowo tylko 2 km od Stargardu.

W skład nieruchomości wchodzą:

PARTER:

- salon z kuchnią -  31,7 m2
- łazienka -  4.0 m2 
- kotłownia - 2,18 m2
- holl 10,37 - m2
- garaż - 15 m2

PIĘTRO:

- pokój - 14,11 m2
- pokój - 13,74 m2
- pokój - 8,35 m2
- pokój - 12,33 m2
- łazienka - 5,13 m2
- korytarz - 6,8 m2

Nieruchomość oddawana w stanie deweloperskim. Wykonane zostaną wszystkie instalacje (elektryczna, woda, szambo) oraz zamontowana zostanie ekonomiczna pompa ciepła zasilająca ogrzewanie podłogowe oraz ciepłą wodę.

 Za niewielką dopłatą możliwe wykonanie rolet zewnętrznych elektrycznie sterowanych, wykonanie polbruków dostosowanych do potrzeb klienta oraz ogrodzenia.

Istnieje możliwość wykończenia domu w standardzie - POD KLUCZ!
 

Atrakcyjna lokalizacja - wokół nowoczesna zabudowa jednorodzinna oraz świetne połączenie z centrum miasta.

Podana cena jest kwotą brutto. Kupujący zwolniony z podatku 2% PCC.

Zainteresowany? Zadzwoń po więcej szczegółów.

Potrzebujesz kredytu? Nasi eksperci finansowi pomogą Ci w znalezieniu najlepszej i najtańszej opcji kredytowej!


Szczegóły
Rodzaj oferty Dom na sprzedaż
Liczba pokoi 5
Liczba łazienek 2
Powierzchnia 127 m2
Działka 500
Cena 599 000 zł (4 770 zł/m2)
Forma prawna Własność
Rok budowy 2025
Materiał Mieszany
Stan budynku Stan deweloperski
Rodzaj ogrzewania pompa ciepła