POWIERZCHNIA (M²)

CENA ZA M²

PIĘTRO

LICZBA POKOI

ROK BUDOWY

RYNEK

NUMER OFERTY

Poprzednia oferta
Powrót
Następna oferta

Super 4 Pokoje - 2 Balkony - Warzymice !

Mieszkanie na sprzedaż

Lokalizacja Warzymice
ul. Tęczowe Ogrody
Numer oferty OST20298
Rodzaj budynku Niski blok
Rok budowy 2009
Materiał Cegła
Liczba pokoi 4
Powierzchnia 88 m2
Cena 920 000 zł

Opis

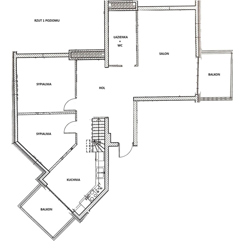
Prezentujemy Państwu na sprzedaż 4 pokojowe mieszkanie o pow. ok.  89 m2 usytuowane na 2 piętrze niskiego budynku na klimatycznym i zamkniętym osiedlu na Warzymicach.

Nieruchomość o bardzo ciekawym rozkładzie pomieszczeń, funkcjonalnie i przyjemnie zaaranżowana.

Na powierzchnię mieszkania składają się dwa poziomy.

Na pierwszym znajdują się spory salon o pow. ok.  23 m2 w wyjściem na balkon, dwie sypialnie, kuchnia z wyjściem na balkon, łazienka z WC oraz duży hol z szafami w zabudowie.
Łazienka spora wyposażona w wannę, kabinę prysznicową WC oraz bidet, wykończona gustownymi kaflami.
Kuchnia urządzona bardzo funkcjonalnie, z meblami w zabudowie .

Na drugim poziomie znajduje się duża przestrzeń gdzie znajduje się sypialnia z garderobą oraz część przeznaczona na gabinet.

Nieruchomość w bardzo dobrym stanie, nowocześnie zaaranżowana i przyjemna dla oka. 
Liczne punktowe oświetlenie oraz wystrój dają bardzo przyjemny klimat.

Czynsz ok. 1200 + 330 zł fundusz remontowy. Ogrzewanie oraz ciepła woda w czynszu (miejskie).
Do użytku 2 piwnice!

Istnieje możliwość dokupienia garażu.

Budynek w świetnym stanie z ładną klatką oraz przyjemną infrastrukturą na całym osiedlu.
Osiedle strzeżone i monitorowane z licznymi miejscami parkingowymi.

Okolica przyjazna rodzinie. W pobliżu sklepy, punkty usługowe oraz miejsca do rekreacji!

Szczególnie polecamy ze względu na lokalizację oraz standard nieruchomości!
Zapraszamy na prezentacje


Szczegóły
Rodzaj oferty Mieszkanie na sprzedaż
Liczba pokoi 4
Liczba łazienek 1
Liczba pięter 2
Powierzchnia 88 m2
Cena 920 000 zł (10 356 zł/m2)
Forma prawna Własność
Rodzaj budynku Niski blok
Rok budowy 2009
Materiał Cegła
Rodzaj ogrzewania co miejskie
Dodatkowo piwnica    ochrona    monitoring