Mieszkanie na sprzedaż
| Lokalizacja |
Szczecin Warszewo ul. Maciejkowa |
|
|---|---|---|
| Numer oferty | PSK21635 | |
| Rodzaj budynku | Niski blok | |
| Rok budowy | 2013 | |
| Materiał | Cegła | |
| Liczba pokoi | 2 | |
| Powierzchnia | 55 m2 | |
| Cena | 599 000 zł |
Fantastyczne, gustownie wykończone mieszkanie zlokalizowane na kameralnym osiedlu Zielona Przystań na Warszewie przy ul. Maciejkowej – zaledwie 400 metrów od Puszczy Wkrzańskiej. Mieszkanie jest świetnie skomunikowane z centrum miasta. 100 m od budynku znajduje się przystanek autobusowy linii 87 (połączenie z Kołłątaja, Urząd Miasta, Plac Grunwaldzki, Brama Portowa, Dworzec Główny). W sąsiedztwie znajduje się sklep spożywczy, apteka, gabinety medyczne, przychodnia, kawiarnia, czy gabinet kosmetyczny - na miejscu można znaleźć wszystko co potrzebne do codziennego funkcjonowania. W odległości ok. 500 m od budynku znajduje się nowobudowana szkoła i przedszkole (termin rozpoczęcia świadczeń - IX 2024 r.).
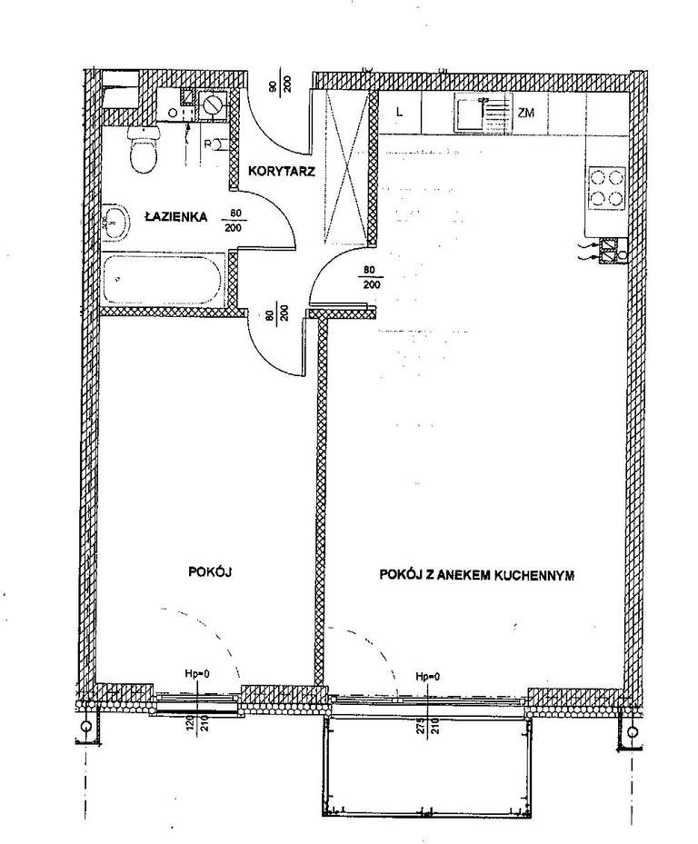
Lokal znajduje się na 1 piętrze dwupiętrowego budynku z 2013 roku i ma 55,19m2 powierzchni użytkowej i składa się z następujących pomieszczeń:
salonu wraz z aneksem kuchennym - 24,82m2 +7,07m2 z wyjściem na balkon 4,03m2
pokoju / sypialni - 14,96m2
łazienki - 4,20m2
przedpokoju 4,14m2
Niewątpliwym atutem apartamentu jest to, iż jest on klimatyzowany w systemie multisplit – salon z aneksem kuchennym oraz sypialnia, co pozwala na niezależne dostosowanie temperatury pomieszczeń. Standard wykończenia pozwala na zamieszkanie bez konieczności przeprowadzania jakichkolwiek remontów.
W przedpokoju znajdują się zabudowane szafy. W całości wydzielonej kuchni zamontowane są meble na wymiar, które maksymalizują przestrzeń do przechowywania. W mieszkaniu zamontowano bardzo duże okna balkonowe, dzięki czemu jest ono widne i ciepłe.
Mieszkanie charakteryzuje się bardzo niskimi kosztami ogrzewania - rachunki za gaz (CO i CWU) (roczne zużycie gazu - ok. 300 m3; temperatura w lokalu w okresie grzewczym - 21 stopni).
Wysokość czynszu za lokal mieszkalny – wraz z funduszem remontowym, bez mediów – wynosi jedynie 144,84 zł miesięcznie. Całe umeblowanie mieszkania pozostaje w cenie.
Istnieje możliwość wykupienia miejsca postojowego w garażu podziemnym. Za miejscem postojowym znajduje się duża komórka lokatorska - 6,5 m2 (cena miejsca postojowego wraz z komórką – 70.000 zł).
Możliwe szybkie wydanie nieruchomości.
Polecamy i zapraszamy na prezentację.
| Rodzaj oferty | Mieszkanie na sprzedaż | ||
|---|---|---|---|
| Liczba pokoi | 2 | ||
| Liczba łazienek | 1 | ||
| Liczba pięter | 2 | ||
| Powierzchnia | 55 m2 | ||
| Cena | 599 000 zł (10 853 zł/m2) | ||
| Forma prawna | Własność | ||
| Forma prawna gruntu | Własność | ||
| Rodzaj budynku | Niski blok | ||
| Rok budowy | 2013 | ||
| Droga dojazdowa | Asfaltowa | ||
| Materiał | Cegła | ||
| Stan budynku | Idealny | ||
| Rodzaj ogrzewania | gazowe | ||
| Komunikacja | autobus | ||
| Odległość od centrum miasta | 6 km | ||
| Dostępne w okolicy | plac zabaw, sklep, apteka, las, szkoła | ||
| Dodatkowo | internet    telewizja kablowa    klimatyzacja    monitoring     |