Mieszkanie na sprzedaż
| Lokalizacja |
Szczecin Centrum al. Wojska Polskiego |
|
|---|---|---|
| Numer oferty | RNH21117 | |
| Rodzaj budynku | Kamienica | |
| Rok budowy | 1939 | |
| Materiał | Cegła | |
| Liczba pokoi | 2 | |
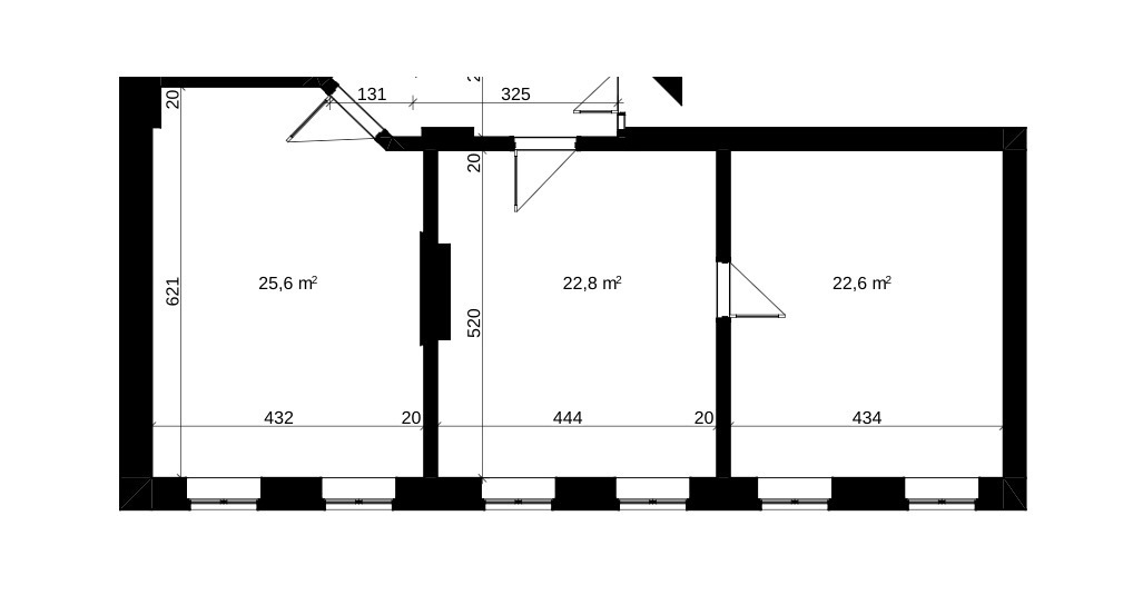
| Powierzchnia | 71 m2 | |
| Cena | 665 000 zł |
Na sprzedaż mieszkanie z potencjałem w Szczecinie z opcją aranżacji pod klucz według Twoich potrzeb
Oferujemy wyjątkową nieruchomość w trakcie przekształcania na dwa niezależne mieszkania z ogromnym potencjałem inwestycyjnym lub idealnym do zamieszkania.
Mieszkanie zlokalizowane w samym centrum Szczecina, aktualnie jest w trakcie podziału na dwa mniejsze lokale, które możesz dostosować do własnych preferencji.
Mieszkanie nr 1 : 2-pokojowe, przestronne, idealne dla pary lub singla.
Mieszkanie nr 2 : 3-pokojowe, funkcjonalny układ pomieszczeń dla rodzin.
Lub jako inwestycja pod wynajem.
Odnowiona klatka schodowa z monitoringiem.
Dlaczego warto? - elastyczność aranżacji.
Kupując teraz, możesz skorzystać z możliwości wykończenia pod klucz, zgodnie z własnym gustem i potrzebami.
Mieszkanie będzie gotowe do zamieszkania bez dodatkowych nakładów finansowych.
Idealna lokalizacja w samym centrum idealne miejsce na Booking przy Deptaku Bogusława
Bliskość komunikacji miejskiej, sklepów oraz terenów rekreacyjnych .
Jeśli szukasz mieszkania z opcją dopasowania go do własnych potrzeb i oczekiwań – to oferta właśnie dla Ciebie!
Skontaktuj się z nami, by dowiedzieć się więcej o szczegółach projektu i umówić się na prezentację.
| Rodzaj oferty | Mieszkanie na sprzedaż | ||
|---|---|---|---|
| Liczba pokoi | 2 | ||
| Liczba łazienek | 1 | ||
| Liczba pięter | 4 | ||
| Powierzchnia | 71 m2 | ||
| Cena | 665 000 zł (9 366 zł/m2) | ||
| Forma prawna | Własność | ||
| Rodzaj budynku | Kamienica | ||
| Rok budowy | 1939 | ||
| Materiał | Cegła | ||
| Rodzaj ogrzewania | co miejskie | ||
| Dodatkowo | monitoring     |