POWIERZCHNIA (M²)

CENA ZA M²

PIĘTRO

LICZBA POKOI

ROK BUDOWY

RYNEK

NUMER OFERTY

Poprzednia oferta
Powrót
Następna oferta

3 pokoje na al. Jana Pawła II

Mieszkanie na sprzedaż

Lokalizacja Szczecin Jasne Błonia
al. Papieża Jana Pawła II
Numer oferty BON46482
Rodzaj budynku Kamienica
Rok budowy 1920
Materiał Cegła
Liczba pokoi 3
Powierzchnia 71 m2
Cena 599 000 zł

Opis

Na sprzedaż mieszkanie w Topowej lokalizacji, tuż obok Jasnych Błoni, przy alei Jana Pawła II.

MIESZKANIE
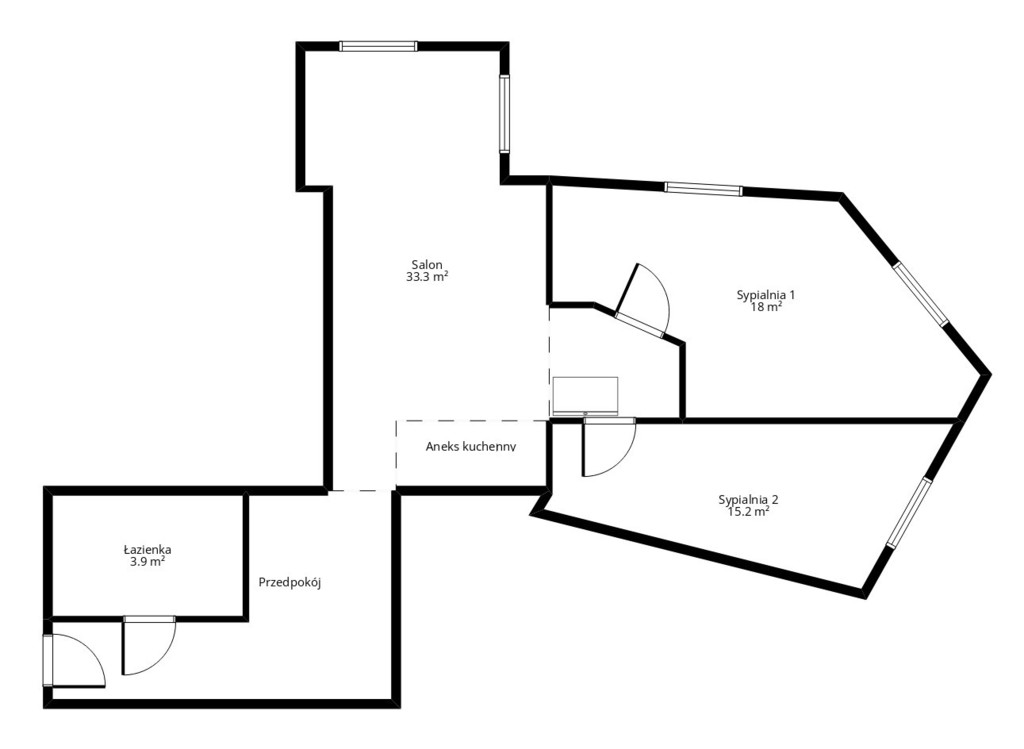
Na powierzchnię 71,84 m2 składa się:
- salon z aneksem kuchennym (33,32 m2)
- sypialnia 1 (18,07 m2)
- sypialnia 2 (15,28 m2)
- łazienka (3,95 m2)

BUDYNEK
Odrestaurowana kamienica przy al. Jana Pawła II z zadbanym patio.

LOKALIZACJA
– Jasne Błonia 500 m
– basen 750 m
– centrum handlowe 650 m
– teatr lalek 500 m

ATUTY
- zupełnie nowe mieszkanie
- wyposażone w nowy sprzęt AGD
- wysokie sufity dzięki czemu jest bardziej przestronne
- super lokalizacja tuż przy Jasnych Błoniach
- piękna odnowiona kamienica
- niski czynsz

Obecnie mieszkanie funkcjonuje jako 3-pokojowe (w księdze wieczystej opisane jako pokój dzienny z aneksem kuchennym, pokój, łazienka).
Dla większej funkcjonalności wydzielona została dodatkowa sypialnia.

Oferta na wyłączność.
Klucze w biurze

Zapraszam na prezentację.


Szczegóły
Rodzaj oferty Mieszkanie na sprzedaż
Liczba pokoi 3
Liczba pięter 4
Powierzchnia 71 m2
Cena 599 000 zł (8 337 zł/m2)
Forma prawna Własność
Rodzaj budynku Kamienica
Rok budowy 1920
Materiał Cegła
Stan budynku Bardzo dobry