Wynajem lokalu usługowego
| Lokalizacja |
Szczecin Śródmieście Jagiellońska |
|
|---|---|---|
| Numer oferty | PTR25707 | |
| Rodzaj budynku | Niski blok | |
| Rok budowy | 1994 | |
| Materiał | Cegła | |
| Liczba pokoi | 9 | |
| Powierzchnia | 290 m2 | |
| Cena | 10 000 zł |
Wynajmę lokal w Szczecinie przy ul. Jagiellońskiej. Lokal znajduje się w drugiej linii zabudowy, posiada wejście bezpośrednio z podwórza (własne niezależne). Sporo miejsca na ewentualny szyld reklamę itp. Miejsce bardzo dobrze skomunikowane z Centrum, w bezpośrednim sąsiedztwie tramwaje i linie autobusowe. Budynek wybudowany w latach 90. Lokalizacja i obiekt idealny na siedzibę firmy, która potrzebuje dużej powierzchni biurowej: szkoły językowej, firm medycznych itp.
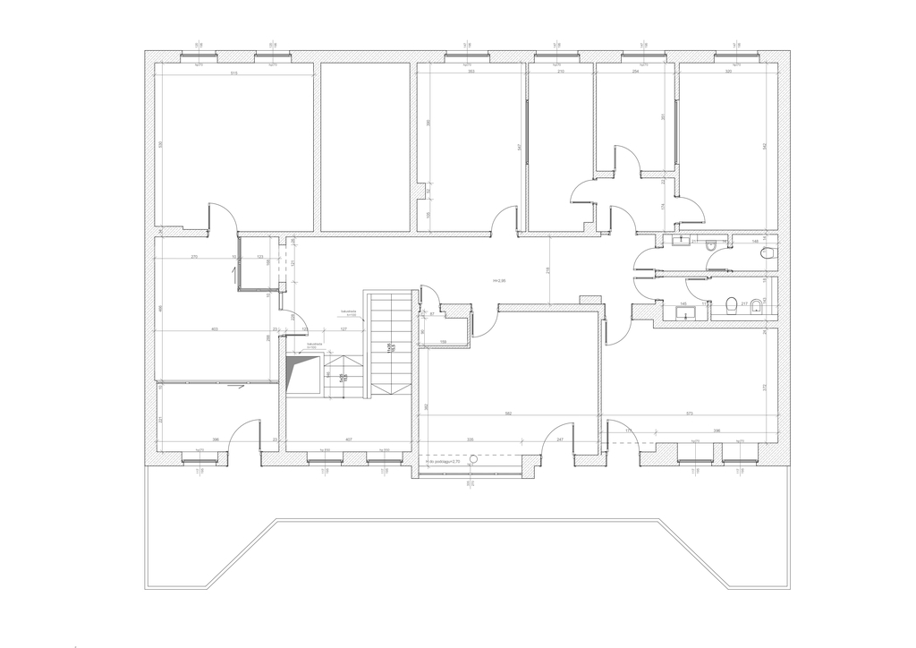
Lokal składa się z 9 pomieszczeń biurowych w różnych wymiarach od 8,5m2 do 28m2, małej serwerowni, pomieszczenia socjalnego (kuchnia 17,6m2 umeblowana i wyposażona np. w zmywarkę), trzy toalety z nowoczesną armaturą.
Wszystkie pomieszczenia wykonane z bardzo dobrej jakości materiałów, w pomieszczeniach biurowych mamy wykładziny dywanowe, pomieszczenia socjalne i toalety w terakocie w nowoczesnym stylu.
Lokal posiada system alarmowy, domofon, i pełną instalację komputerowo- telefoniczną (gniazdka we wszystkich pomieszczeniach) osobne pomieszczenie na serwer gdzie zbiega się cała instalacja.
W większości pomieszczeń znajdują ujęcia wody i kanalizacji (aktualnie zaślepione) co jest wyjątkowo przydatne przy niektórych działalnościach. Trzy pomieszczenia posiadają wyjścia na wspólny taras. Okna wszystkie PCV.
Ogrzewanie własne piecem gazowym
Wydanie lokalu od ręki, oglądanie również.
| Rodzaj oferty | Wynajem lokalu usługowego | ||
|---|---|---|---|
| Liczba pokoi | 9 | ||
| Liczba pięter | 4 | ||
| Powierzchnia | 290 m2 | ||
| Cena | 10 000 zł (34 zł/m2) | ||
| Forma prawna | Spółdzielcze własnościowe prawo | ||
| Forma prawna gruntu | Własność | ||
| Rodzaj budynku | Niski blok | ||
| Rok budowy | 1994 | ||
| Materiał | Cegła | ||
| Stan budynku | Dobry | ||
| Dodatkowo | recepcja    monitoring     |