Dom na sprzedaż
| Lokalizacja | Police | |
|---|---|---|
| Numer oferty | HAC22676 | |
| Rok budowy | 2025 | |
| Materiał | Mieszany | |
| Liczba pokoi | 4 | |
| Powierzchnia | 118 m2 | |
| Działka | 896 m2 | |
| Cena | 780 000 zł |
Nowa inwestycja Police.
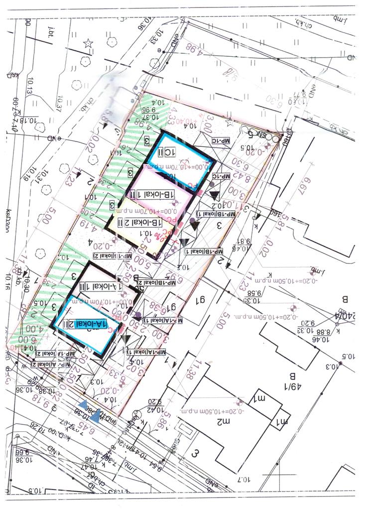
Środkowy lokal mieszkalny - zabudowa bliźniacza w Policach. Nieruchomość o bardzo funkcjonalnym rozkładzie pomieszczeń. Powierzchnia użytkowa 85,26m2 + 38,8m2 -strych. Stan deweloperski, budynek jednorodzinny w zabudowie bliźniaczej dwulokalowej . Parter, piętro,poddasze plus ogródek oraz dwa miejsca postojowe. Na parterze salon z wyjściem na taras oraz ogródek, kuchnia, WC , schowek ,wiatrołap. Z salonu wyjście na mały ogródek poprzez taras.
Piętro - trzy pokoje, łazienka z WC oraz korytarz. Na poddaszu dodatkowa przestrzeń o powierzchni 38,8m2.( po podłodze razy2)
Fundamenty:
- ławy żelbetowe beton
- izolacja przeciwwilgociowa
- izolacja termiczna ścian fundamentowych styropian fundamentowy wodoodporny
Ściany: nośne dwuwarstwowe z bloczków silikatowych . Działowe z bloczków silikatowych.
Komin kominkowy - komin systemowy JAWAR .
Dach: więźba dachowa drewniana, dachówka ceramiczna, rynny PCV, obróbki blacharskie z blachy stalowej ocynkowanej lub cynkowej
Okna; PCV, trzyszybowe, ciepły montaż
Drzwi tarasowe rozsuwane
Schody wewnętrzne monolityczne żelbetowe.
Ocieplenie budynku- styropian zakończony pucem.Ogrzewanie pompa ciepła , ogrzewanie podłogowe w całym domu i grzejniki łazienkowe .
Teren: ogrodzenie przydomowych ogródków - z paneli, dojścia do budynków
Powierzchnia działki na którym posadowione są dwa budynki to powierzchnia 896 m2.
Nieruchomość ogrodzona. Do każdego lokalu przynależą dwa miejsca postojowe. Dojazd drogą główną asfaltową. W pobliżu przystanki autobusowe, szkoła podstawowa , zespół szkół oraz liczne sklepy.
Wysoki standard wykończenia, bliskość do centrum miasta a jednocześnie spokój, cisza oraz bezpieczna okolica gwarantuje komfort zamieszkania.
Przewidywany termin zakończenia inwestycji IV kwartał 2025 roku.
Lokalizacja spokojna, zielona, w sąsiedztwie domów jednorodzinnych.
Do każdej nieruchomości przynależą 2 miejsca parkingowe oraz mały ogródek.
Nie zwlekaj i już dziś zarezerwuj swój wymarzony dom! Kupując tą nieruchomość nie płacisz PCC! Sprzedaż na podstawie umowy deweloperskiej.
Zapraszam na prezentację!
| Rodzaj oferty | Dom na sprzedaż | ||
|---|---|---|---|
| Liczba pokoi | 4 | ||
| Liczba pięter | 3 | ||
| Powierzchnia | 118 m2 | ||
| Działka | 896 | ||
| Cena | 780 000 zł (6 595 zł/m2) | ||
| Forma prawna | Własność | ||
| Forma prawna gruntu | Własność | ||
| Rok budowy | 2025 | ||
| Droga dojazdowa | Utwardzona | ||
| Materiał | Mieszany | ||
| Stan budynku | Stan deweloperski | ||
| Dodatkowo | ogród     |