POWIERZCHNIA (M²)

CENA ZA M²

PIĘTRO

LICZBA POKOI

ROK BUDOWY

RYNEK

NUMER OFERTY

Poprzednia oferta
Powrót
Następna oferta

Stylowe 2 pokoje dla wyjątkowych nabywców

Wynajem mieszkania

Lokalizacja Szczecin Centrum
ul. bł. Królowej Jadwigi
Numer oferty OST20274
Rodzaj budynku Niski blok
Rok budowy 1930
Materiał Cegła
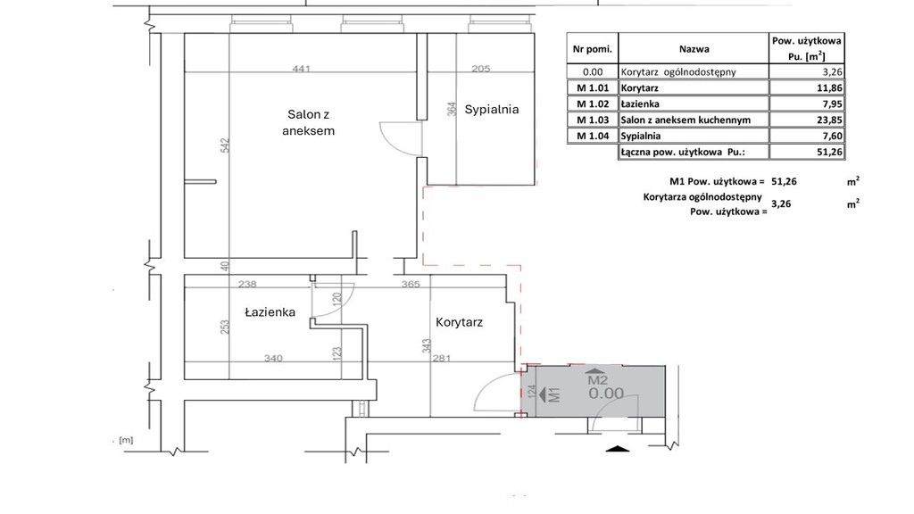
Liczba pokoi 2
Powierzchnia 51 m2
Cena 3 300 zł

Opis

Serdecznie polecam ofertę sprzedaży wyjątkowego mieszkania, położonego w cichym Centrum Szczecina, zaledwie 500 m od ZUT.

Nieruchomość usytuowana jest na 2 piętrze odremontowanej i czystej kamienicy.

Mieszkanie przeszło gruntowny remont w 2023 roku i jest oferowane w doskonałym stanie.

Oferowane jest w pełni wyposażone:

Przedpokój:
trzydrzwiową szafą do przechowywania odzieży oraz sprzętów czyszczących, odkurzacz, suszarka na pranie,

Kuchnia:
zabudowa meblowa ze sprzętami AGD: płytą indukcyjną, okapem, zmywarką 60 cm, mikrofalówką oraz lodówko-zamrażarką oraz wszelkie niezbędne przedmioty codziennego użytku (naczynia, sztućce, garnki, etc.)

Salon:
kanapa z Agata Meble z funkcją spania, rozkładany stół i krzesła welurowe z Komfortu, szafka rtv, zaciemniające zasłony welurowe, stoliki pomocniki, TV,

Sypialnia:
podwójne łóżko z materacem, szafa, stolik pomocnik,

Łazienka:
wanna z parawanem i kolumną prysznicową, podwieszony WC, nowoczesna pralka Toshiba,

Obrazy widoczne na zdjęciach pochodzą z Galerii VD Justyny Kuligowskiej i nie są przedmiotem najmu.

Niskie koszty utrzymania są ogromnym atutem - czynsz wynosi zaledwie 281 zł przy 1 osobie, rachunki za gaz około 100-130 zł miesięcznie, prąd zgodnie ze zużyciem.

W najbliższym sąsiedztwie znajdują się:
- ZUT - 4 minuty pieszo,
- Wydział Inżynierii Mechanicznej - 10 min pieszo,
- przystanek autobusowy - 4 min pieszo,
- przystanek tramwajowy - 4 min pieszo
- sklep osiedlowy - 3 min pieszo,
- dyskonty spożywcze - 3-5 min pieszo.

Oferta na wyłączność, klucze w biurze.

Wymagany jest najem okazjonalny oraz kaucja jednomiesięczna.

Serdecznie polecam ze względu na wyjątkowy charakter i wysoki standard mieszkania. 

Zapraszam na prezentację.


Szczegóły
Rodzaj oferty Wynajem mieszkania
Liczba pokoi 2
Liczba łazienek 1
Liczba pięter 4
Powierzchnia 51 m2
Cena 3 300 zł (64 zł/m2)
Forma prawna Własność
Rodzaj budynku Niski blok
Rok budowy 1930
Materiał Cegła
Rodzaj ogrzewania gazowe
Komunikacja tramwaj, autobus
Dostępne w okolicy zabudowa niska, przychodnia lekarska, uczelnia, sklep, Żłobek, szkoła, kościół, plac zabaw, apteka, fitnes, centrum handlowe, restauracja, przedszkole, bank