Mieszkanie na sprzedaż
| Lokalizacja |
Szczecin Warszewo ul. Duńska |
|
|---|---|---|
| Numer oferty | BON46382 | |
| Rodzaj budynku | Apartamentowo-handlowy | |
| Rok budowy | 2005 | |
| Materiał | Silikat | |
| Liczba pokoi | 3 | |
| Powierzchnia | 86 m2 | |
| Cena | 695 000 zł |
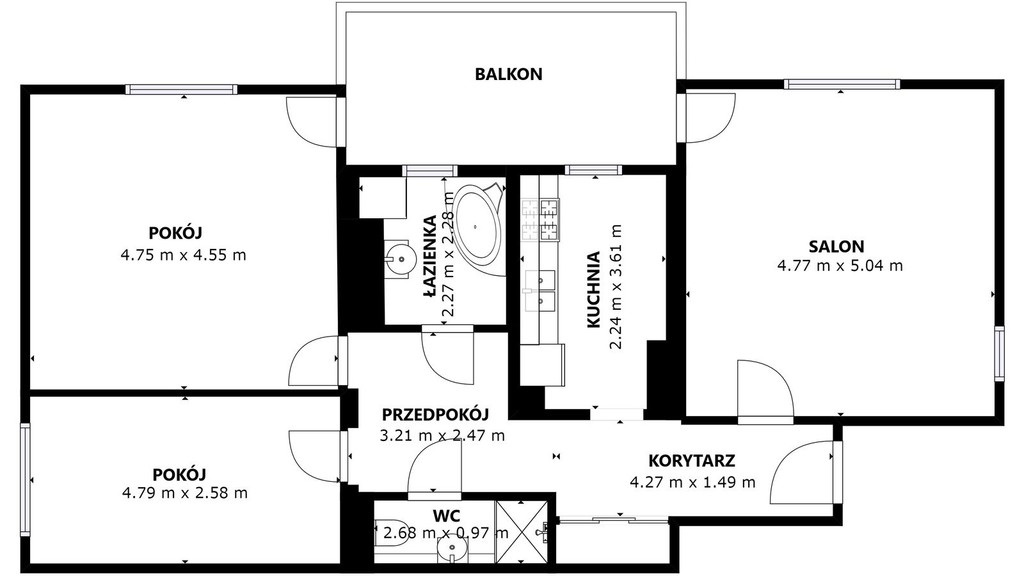
Przestronne 3 pokoje z pięknym widokiem na miasto.
Mieszkanie znajduje się na 3 piętrze w niskim bloku z windą.
Na łączną powierzchnię 86,8m2 składa się:
- pokój dzienny z wyjściem na przestronny balkon.
- sypialnia
- pokój z wyjściem na balkon
- łazienka z wanną
- łazienka z prysznicem i WC
- osobna kuchnia z miejscem jadalnym
- korytarz
Jest możliwość dokupienia miejsca postojowego w garażowcu w cenie 100 tys zł.
Doskonała lokalizacja, dobrze skomunikowana z centrum miasta. Dookoła przestanki komunikacji miejskiej, liczna infrastruktura, sklepy, szkoły, apteki itp.
Zapraszam na prezentację.
| Rodzaj oferty | Mieszkanie na sprzedaż | ||
|---|---|---|---|
| Liczba pokoi | 3 | ||
| Liczba łazienek | 2 | ||
| Liczba pięter | 4 | ||
| Powierzchnia | 86 m2 | ||
| Cena | 695 000 zł (8 006 zł/m2) | ||
| Forma prawna | Własność | ||
| Forma prawna gruntu | Własność | ||
| Rodzaj budynku | Apartamentowo-handlowy | ||
| Rok budowy | 2005 | ||
| Materiał | Silikat | ||
| Stan budynku | Dobry | ||
| Dodatkowo | internet    telewizja kablowa    winda     |