POWIERZCHNIA (M²)

CENA ZA M²

PIĘTRO

LICZBA POKOI

ROK BUDOWY

RYNEK

NUMER OFERTY

Poprzednia oferta
Powrót
Następna oferta

Mieszkanie 3 pokojowe z ogródkiem / Krzekowo

Mieszkanie na sprzedaż

Lokalizacja Szczecin Krzekowo
ul. Księdza Robaka
Numer oferty ARK26347
Rodzaj budynku Niski blok
Rok budowy 2000
Materiał Cegła
Liczba pokoi 3
Powierzchnia 64 m2
Cena 665 000 zł

Opis

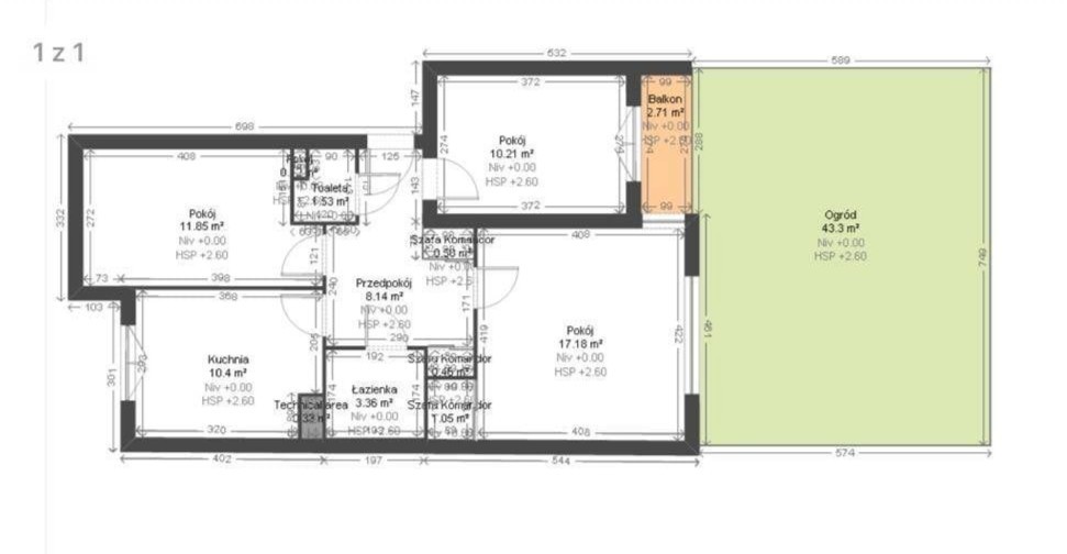
Zapraszam do zapoznania się z ofertą 3 pokojowego mieszkania z ogródkiem na cichym i zielonym osiedlu na pograniczu Pogodna i Krzekowa.

Lokal jest w dobrym stanie, znajduje się na parterze (bez schodów) w niskim bloku wybudowanym w 2000 roku.
Powierzchnia całkowita wynosi 64.78 m² i przypada na:

- salon z wyjściem na balkon i do ogródka
- pokój dziecka
- sypialnia
- łazienka z wanną
- osobna toaleta
- wyposażona i duża kuchnia 
- szeroki przedpokój

Niezmiernym atutem jest słoneczny ogródek, za nim znajduje się teren wspólny tylko dla mieszkańców co gwarantuje większą prywatność. Wokół budynku jest wiele miejsc postojowych.
Mieszkanie jest rozkładowe i funkcjonalne, w zabudowie 3 szafy typu komandor.  Niski czynsz - przy 4 osobach wynosi 500zł, ogrzewanie i ciepła woda pochodzą z pieca gazowego. 

W okolicy znajduje się sklep Netto, Biedronka, apteka, wiele punktów usługowo-handlowych, żłobek i przedszkole. Dojazd do centrum Szczecina samochodem zajmuje niecałe 15 minut.

Zakup najbardziej polecam rodzinie z dzieckiem lub starszym osobom ze względu na parter bez barier architektonicznych.
Cena do małej negocjacji. Zapraszam na prezentację mieszkania.


Szczegóły
Rodzaj oferty Mieszkanie na sprzedaż
Liczba pokoi 3
Liczba łazienek 1
Liczba pięter 2
Powierzchnia 64 m2
Cena 665 000 zł (10 265 zł/m2)
Forma prawna Własność
Rodzaj budynku Niski blok
Rok budowy 2000
Materiał Cegła
Rodzaj ogrzewania gazowe
Komunikacja autobus
Dostępne w okolicy uczelnia, park, plac zabaw, centrum handlowe, szkoła, przedszkole, Żłobek, przychodnia lekarska, apteka
Dodatkowo internet    telewizja kablowa    ogród