POWIERZCHNIA (M²)

CENA ZA M²

PIĘTRO

LICZBA POKOI

ROK BUDOWY

RYNEK

NUMER OFERTY

Poprzednia oferta
Powrót
Następna oferta

Ładne mieszkanie w dobrej lokalizacji

Mieszkanie na sprzedaż

Lokalizacja Szczecin Śródmieście
ul. Mariana Langiewicza
Numer oferty BON46314
Rodzaj budynku Niski blok
Rok budowy 1999
Materiał Cegła
Liczba pokoi 2
Powierzchnia 52 m2
Cena 530 000 zł

Opis

Planujesz skredytować to mieszkanie – zadzwoń.

Dwupokojowe, rozkładowe mieszkanie z balkonem w śródmieściu Szczecina przy ul. Langiewicza.

Nieruchomość idealna na zakup na własne potrzeby ale także na inwestycję pod wynajem ze względu na bliskość uczelni wyższych i rozkład mieszkania.
W pobliżu liczne sklepy, punkty gastronomiczne, komunikacja miejska.
Ogólnodostępny parking pod budynkiem.

Mieszkanie znajduje się na drugim piętrze niskiego budynku z cegły. Rok budowy 1999.

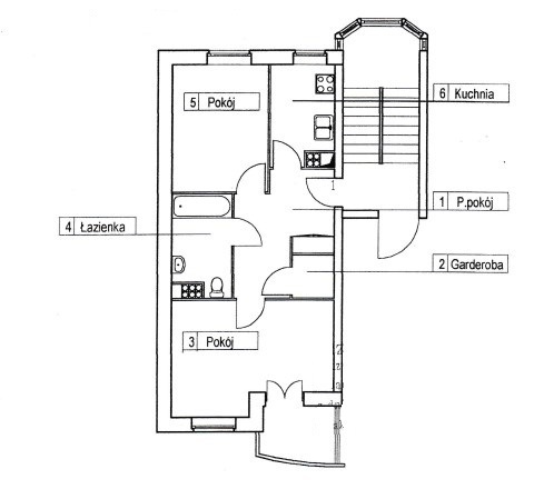
Mieszkanie o powierzchni 52,90 m2, składa się z:
- przestronnego, jasnego salonu o pow. 17,30m2
- ustawnego pokoju o pow. 12,52m2
- przedpokoju z szafą w zabudowie o pow. 6,75m2
- garderoby o pow. 1,85m2
- łazienki z wanną i wc o pow. 8,54m2

Do mieszkania przynależy piwnica.

Czynsz około 325 zł., zawiera opłaty administracyjne, eksploatacyjne oraz fundusz remontowy. Ogrzewanie oraz podgrzanie wody z pieca gazowego.
Piec gazowy jest nowy.

Zapraszam na prezentację.


Świadectwo charakterystyki energetycznej - zapotrzebowanie na energię:

EU - użytkową (kWh/m2*rok): 101.20; EK - końcową (kWh/m2*rok): 140.10; EP - nieodnawialną energię pierwotną (kWh/m2*rok): 158.80; EC02 - Wielkość emisji CO2 (t C02/m2*rok): 0.03; UOZE - Udział odnawialnych źródeł energii w zapotrzebowaniu na energię końcową [%]: 0.00;


Szczegóły
Rodzaj oferty Mieszkanie na sprzedaż
Liczba pokoi 2
Liczba pięter 4
Powierzchnia 52 m2
Cena 530 000 zł (10 018 zł/m2)
Forma prawna Własność
Rodzaj budynku Niski blok
Rok budowy 1999
Materiał Cegła
Stan budynku Bardzo dobry
Dodatkowo piwnica