POWIERZCHNIA (M²)

CENA ZA M²

PIĘTRO

LICZBA POKOI

ROK BUDOWY

RYNEK

NUMER OFERTY

Poprzednia oferta
Powrót
Następna oferta

Nowa inwestycja w Szczecinie, 2 pokoje z balkonem.

Mieszkanie na sprzedaż

Lokalizacja Szczecin Centrum
ul. Miedziana
Numer oferty BON46293
Rodzaj budynku Mieszkalno-biurowy
Rok budowy 2024
Materiał Silikat
Liczba pokoi 2
Powierzchnia 49 m2
Cena 624 500 zł

Opis

Planujesz skredytować to marzenie – zadzwoń.

Idealna propozycja dla wymagających Klientów- na własne lub inwestycyjne potrzeby.

Lokalizacja:ciche Śródmieście: ul. Emilli Plater- bliskość Centrum i Wałów Chrobrego.

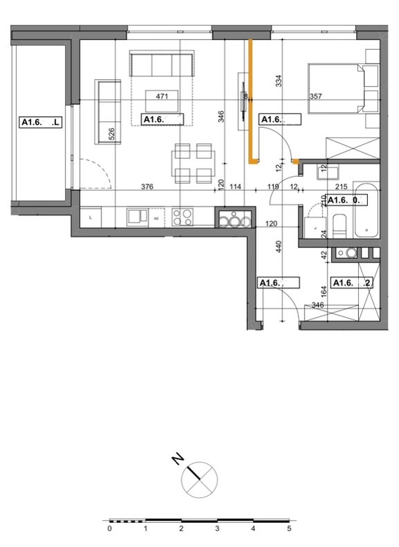
Mieszkanie o powierzchni 49,96m2 położone na 6 pietrze niezwykłego budynku, na co składają się:

- hall- 5,48m2,
- salon z aneksem kuchennym (23,91m2) z wyjściem na balkon typu loggia- 5,71m2,
- sypialnia -11,72m2,
- łazienka 4,39m2.

Mieszkanie w standardzie deweloperskim-wysoka jakość wykończenia i funkcjonalny rozkład pomieszczeń.

Przedstawione wizualizacje prezentują przykładowe propozycje aranżacyjne.

W cenie komórka lokatorska znajdująca się w poziomie garażu.
Budynek o ciekawej, modernistycznej, kaskadowej architekturze, który zapewnia panoramiczne widoki na stocznie i okolice.

Balkon typu loggia zapewnia intymność, a zarazem przestrzenne widoki.
Budynek przyjazny osobom niepełnosprawnym, wyposażony w 2 cichobieżne windy i brak schodów przy wejściu do budynku.

Wewnątrz budynku ładne patio dla użytku mieszkańców.
Duża liczba miejsc parkingowych oraz opcja zakupu miejsca garażowego w garażu podziemnym za dodatkową opłatą.

Niskie koszty zakupu- Kupujący nie płaci podatku PCC.

Mieszkanie gotowe do wydania.

Polecam i zapraszam do zakupu.


Szczegóły
Rodzaj oferty Mieszkanie na sprzedaż
Liczba pokoi 2
Liczba łazienek 1
Liczba pięter 10
Powierzchnia 49 m2
Cena 624 500 zł (12 500 zł/m2)
Forma prawna Własność
Rodzaj budynku Mieszkalno-biurowy
Rok budowy 2024
Materiał Silikat
Stan budynku Idealny
Dodatkowo piwnica    winda