Wynajem mieszkania
| Lokalizacja |
Szczecin os. Przyjaźni ul. 26 Kwietnia |
|
|---|---|---|
| Numer oferty | MAP22904 | |
| Rodzaj budynku | Wysoki blok | |
| Rok budowy | 1980 | |
| Materiał | Wielka Płyta | |
| Liczba pokoi | 2 | |
| Powierzchnia | 45 m2 | |
| Cena | 2 500 zł |
Na wynajem przestronne mieszkanie dwupokojowe, położone na II piętrze wysokiego budynku z windą na os. Przyjaźni.
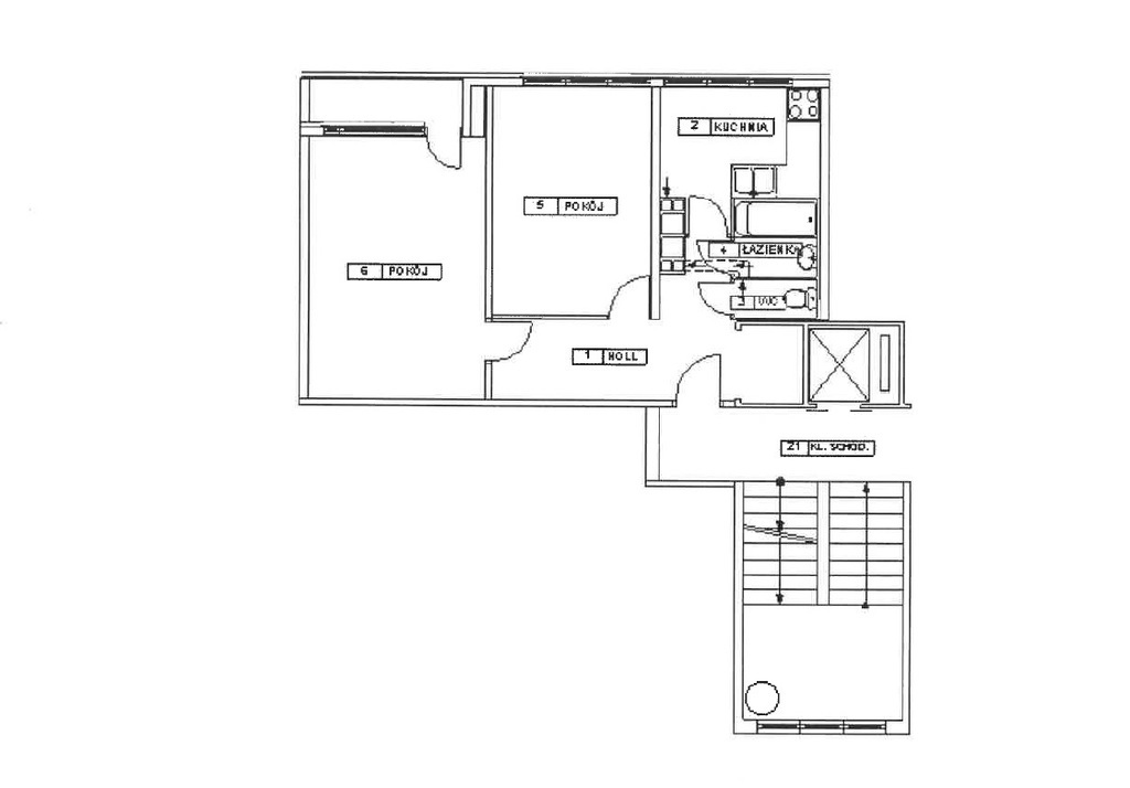
Na powierzchni 45m2 znajdują się 2 pokoje (z jednego wyjście na balkon), kuchnia, łazienka, toaleta oraz przedpokój.
Mieszkanie w pełni rozkładowe- do każdego pomieszczenia wchodzimy z przedpokoju.
Ogrzewanie i ciepła woda z sieci miejskiej. Czynsz ok. 580 zł (z zaliczkami na wodę i ogrzewanie).
Bardzo dobrze skomunikowane miejsce- dojazd do ścisłego Centrum w kilka minut. W okolicy szkoły, sklepy, przystanki komunikacji miejskiej).
Oferta wystawiona przez biuro nieruchomości. Wymagany najem okazjonalny.
Mieszkanie do wydania od zaraz.
Polecamy i zapraszamy na prezentacje!
Klucze w biurze. Oferta na wyłączność.
| Rodzaj oferty | Wynajem mieszkania | ||
|---|---|---|---|
| Liczba pokoi | 2 | ||
| Liczba pięter | 8 | ||
| Powierzchnia | 45 m2 | ||
| Cena | 2 500 zł (55 zł/m2) | ||
| Forma prawna | Spółdzielcze własnościowe prawo | ||
| Rodzaj budynku | Wysoki blok | ||
| Rok budowy | 1980 | ||
| Droga dojazdowa | Asfaltowa | ||
| Materiał | Wielka Płyta | ||
| Stan budynku | Bardzo dobry | ||
| Dodatkowo | internet    telewizja kablowa    piwnica    winda     |