Mieszkanie na sprzedaż
| Lokalizacja | Kołobrzeg | |
|---|---|---|
| Numer oferty | MTN13204 | |
| Rodzaj budynku | Dom wielolokalowy | |
| Rok budowy | 2019 | |
| Materiał | Cegła | |
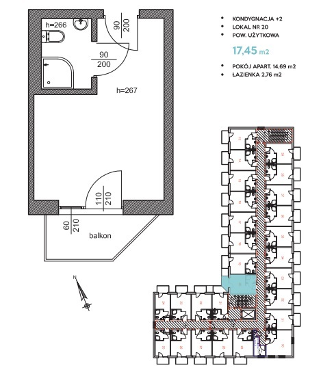
| Liczba pokoi | 1 | |
| Powierzchnia | 17 m2 | |
| Cena | 310 000 zł |
Do sprzedaży
Apartament "ekonomiczny", 1 pokojowy w Kołobrzegu! Z wykończeniem, umeblowaniem, wyposażeniem, balkonem, windą w budynku i restauracją. Pełna własność.
Niskie opłaty za utrzymanie lokalu - ok. 270zł miesięcznie (w tym zaliczki na wodę, ogrzewanie), opłata za zużycie prądu według licznika. Apartament z wystawą okien i balkonem od strony zachodniej. Łóżko 2 osobowe składane, wygodne (materac hotelowy).
Nowy właściciel może nabyć nie tylko lokal, ale również gotowy biznes, z możliwością przejęcia umowy z dobrym operatorem w znanym obiekcie turystycznym, zapewniającym gościom standard hotelowy a właścicielom stabilne stopy zwrotu, apartament w największym uzdrowisku w Polsce - Kołobrzegu.
Umowę z operatorem można przejąć, ale nie jest to konieczność.
Znana i lubiana inwestycja INDU w zachodniej dzielnicy Kołobrzegu, ok. 700 m od parku nadmorskiego, w pobliżu ścieżek rowerowych, tras biegowych, sklepów, punktów gastronomicznych, doskonała komunikacja z miastem.
Inwestycja Indu, w stylu industrialnym, cieszy się bardzo dobrymi opiniami turystów, ulubiona na pobyty krótkoterminowe ze względu na bliskość zarówno plaży, jak i centrum miasta. W budynku 3 piętrowym, z windą funkcjonuje restauracja, w której można zamówić posiłki, wypić kawę.
Mały, dobrze zaprojektowany lokal, oferuje wszystko co jest niezbędne turystom na znacznie mniejszej przestrzeni niż w standardowo projektowanych apartamentach, spełnia oczekiwania turysty pod względem komfortu i estetyki i pozwala uzyskiwać ceny najmu
porównywalne do apartamentów o większej powierzchni. Obiekt dostosowany do osób niepełnosprawnych.
Przepięknie zorganizowana przestrzeń wspólna:
Nowoczesny design, przestronny lobby bar z wyjściem do ogrodu, obiekt bezobsługowy-zautomatyzowany (klucze elektroniczne).
Na zewnątrz zorganizowane miejsce do wypoczynku (kanapy, stoliki), rowerownia dla właścicieli i klientów.
Miejsce na samochód zapewnia parking dla gości przed budynkiem (płatny za dobę według cennika obiektu).
Inwestycja idealna dla osób poszukujących niedrogiego lokalu, z niskimi kosztami utrzymania, zarówno biznesowo pod wynajem krótko i długoterminowy, oraz dla własnych potrzeb. Okolica oddalona od głównej ulicy, dzięki czemu zapewnia wypoczynek i relaks w ciszy i spokoju.
Oferta dostępna wyłącznie u nas.
Zapraszamy na prezentację.
| Rodzaj oferty | Mieszkanie na sprzedaż | ||
|---|---|---|---|
| Liczba pokoi | 1 | ||
| Liczba łazienek | 1 | ||
| Liczba pięter | 2 | ||
| Powierzchnia | 17 m2 | ||
| Cena | 310 000 zł (17 765 zł/m2) | ||
| Forma prawna | Własność | ||
| Forma prawna gruntu | Własność | ||
| Rodzaj budynku | Dom wielolokalowy | ||
| Rok budowy | 2019 | ||
| Materiał | Cegła | ||
| Stan budynku | Idealny | ||
| Dodatkowo | przystosowane dla niepełnosprawych    ogród    winda     |