POWIERZCHNIA (M²)

CENA ZA M²

PIĘTRO

LICZBA POKOI

ROK BUDOWY

RYNEK

NUMER OFERTY

Poprzednia oferta
Powrót
Następna oferta

Mieszkania inwestycyjne pod NAJEM KRÓTKOTERMINOWY.

Mieszkanie na sprzedaż

Lokalizacja Szczecin Śródmieście-Centrum
ul. Wielkopolska
Numer oferty INW31639
Rodzaj budynku Kamienica
Rok budowy 1910
Materiał Cegła
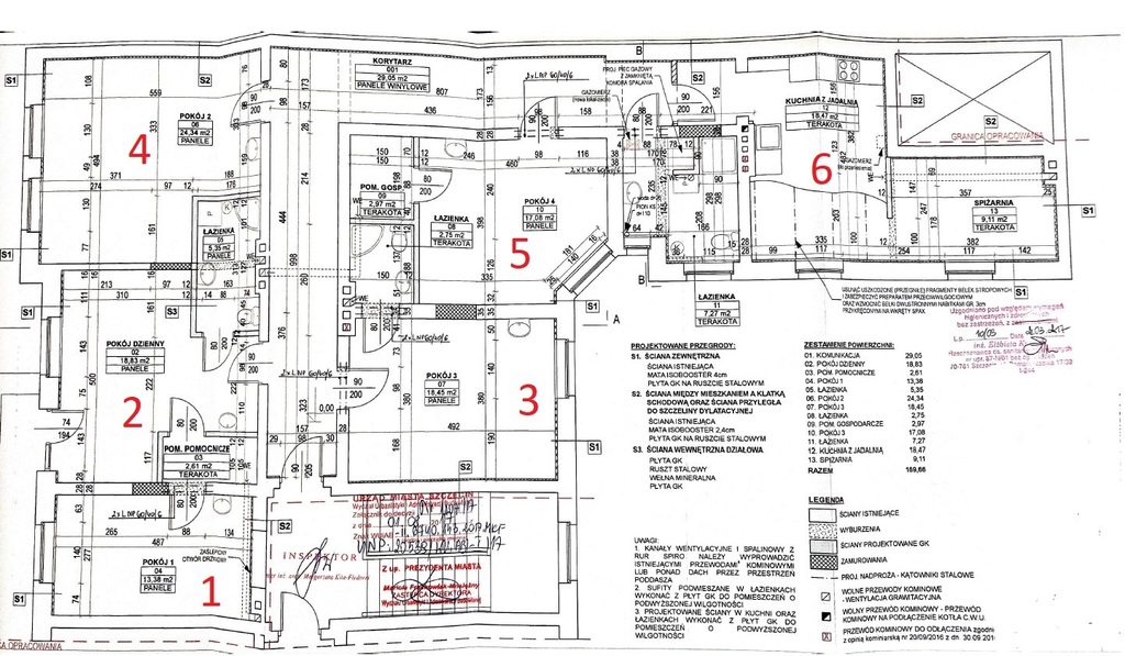
Liczba pokoi 6
Powierzchnia 186 m2
Cena 1 450 000 zł

Opis

Na sprzedaż dobrze prosperujący BIZNES - inwestycja składająca się z 6. apartamentów z łazienkami i aneksami kuchennymi każdy,  w tym jeden z osobną sypialnią, przygotowanych pod najem długo lub krótkoterminowy.

Jest to mieszkanie o powierzchni 178 m2, ulokowane na 3 piętrze gruntownie wyremontowanej kamienicy w centrum Szczecina.

Działający BIZNES!
Mieszkanie od kilku lat przynosi dochód  pasywny ok 220 tyś zł netto rocznie, jest wynajmowane na znanych portalach obsługujących najem krótkoterminowy – dostępne wszystkie informacje.
 
Mieszkanie przeszło generalny remont w 2016 r w zakresie:
- przeprojektowanie całego mieszkania pod kątem wydzielenia 6 niezależnych apartamentów z wydzieleniem łazienek i przygotowaniem aneksów kuchennych w każdym.
 -wymieniona i uporządkowana instalacja elektryczna z dodatkowymi zabezpieczeniami,
- wymienione okna
- wymieniona instalacja wodno – kanalizacyjna,
- położone zostały nowe podłogi w całym mieszkaniu,
- zrobiona została od podstaw wszystkie apartamenty
- nowa instalacja grzewcza – ogrzewanie i ciepła woda pochodzą z pieca gazowego dwubiegowego.

Mieszkanie jest przestronne – wysokie sufity, rozkładowe - dobrze rozplanowane – wszystkie pomieszczenia wychodzą z korytarza.

Dodatkowo wydzielone zostało pomieszczenie gospodarcze w którym znajduje się piec do ogrzewania plus pralka i suszarka do obsługi apartamentów.
Do mieszkania przynależy duża piwnica – ok 12m2

Czynsz: 1000 zł – zaliczka na wodę, fundusz remontowy, wywóz śmieci, dodatkowo prąd i gaz według użycia.

Idealna lokalizacja - centrum Szczecina, bliskość komunikacji miejskiej, pubów, restauracji, parków sprawia, że jest to odpowiednie miejsce dla turystów lub studentów.

Mieszkanie sprzedawane jest z pełnym wyposażeniem widocznym na zdjęciach.

Dobra inwestycja!
Polecam!
Zapraszam na prezentację i po szczegóły.


Szczegóły
Rodzaj oferty Mieszkanie na sprzedaż
Liczba pokoi 6
Liczba łazienek 6
Liczba pięter 4
Powierzchnia 186 m2
Cena 1 450 000 zł (7 770 zł/m2)
Forma prawna Własność
Rodzaj budynku Kamienica
Rok budowy 1910
Materiał Cegła
Rodzaj ogrzewania co własne
Komunikacja autobus, tramwaj
Dodatkowo monitoring