POWIERZCHNIA (M²)

CENA ZA M²

PIĘTRO

LICZBA POKOI

ROK BUDOWY

RYNEK

NUMER OFERTY

Poprzednia oferta
Powrót
Następna oferta

Kawalerka do remontu gen. > samo centrum przy ZUT

Mieszkanie na sprzedaż

Lokalizacja Szczecin Centrum
Księżnej Przybysławy
Numer oferty 55/13324/OM
Rodzaj budynku Kamienica
Rok budowy 1930
Materiał Cegła
Liczba pokoi 1
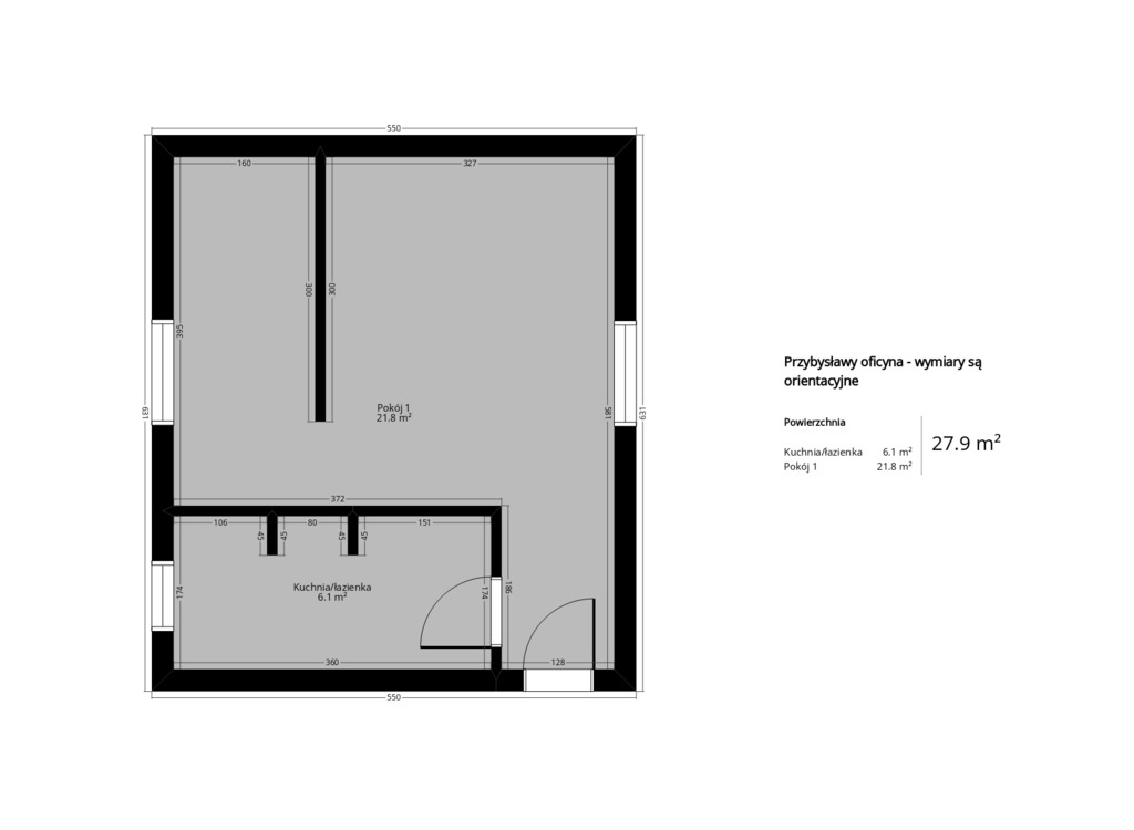
Powierzchnia 27 m2
Cena 169 000 zł

Opis

OFERTA NA WYŁĄCZNOŚĆ
 
Polecamy to mieszkanie jako idealne dla inwestora pod wynajem, głównie ze względu na pierwszorzędną lokalizację tuż przy samym budynku ZUT. Dużym atutem jest możliwość swobodnego ukształtowania powierzchni w zależności od pomysłu, tzn. wydzielenie osobnej kuchni i łazienki lub przeniesienie kuchni do pokoju, a także wydzielenie osobnej sypialni.
 
Mieszkanie:
* powierzchnia 27,86 mkw., wysokość 2,8m, 3 piętro w oficynie kamienicy.
* 1 pokój z możliwością wydzielenia widnej sypialni ze względu na okna po obu stronach pomieszczenia (częściowo wykonane)
* kuchnia oraz łazienka z wc połączone w jedno (konieczność legalizacji łazienki)
* ogrzewanie i ciepła woda z kotła gazowego dwubiegowego
* ekspozycja okien na północ i południe
* okna PCV w bardzo dobrym stanie
 
Budynek:
* budynek 3-piętrowy
* fasada ocieplona, elewacja odnowiona
* przynależna piwnica 5mkw
 
Ważne:
* pełna własność z księgą wieczystą (bez żadnych obciążeń)
* czynsz 560pln
* ciepła woda i ogrzewanie z pieca gazowego dwubiegowego


Szczegóły
Rodzaj oferty Mieszkanie na sprzedaż
Liczba pokoi 1
Liczba łazienek 1
Liczba pięter 3
Powierzchnia 27 m2
Cena 169 000 zł (6 066 zł/m2)
Forma prawna Własność
Rodzaj budynku Kamienica
Rok budowy 1930
Materiał Cegła
Rodzaj ogrzewania gazowe
Komunikacja autobus, tramwaj
Dostępne w okolicy uczelnia, przychodnia lekarska, sklep, gimnazjum, apteka, Żłobek, kościół, bar, plac zabaw, hala sportowa, szpital, park, szkoła, przedszkole, restauracja, centrum handlowe, fitnes, bank