Wynajem mieszkania
| Lokalizacja |
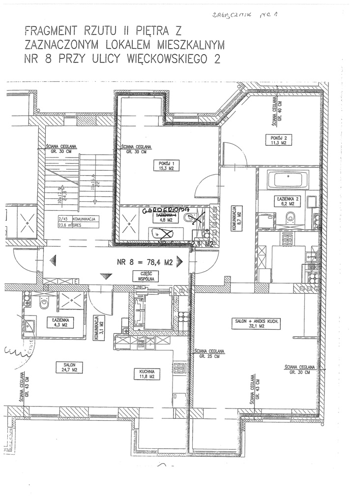
Szczecin Śródmieście-Centrum Stanisława Więckowskiego |
|
|---|---|---|
| Numer oferty | SWN32016 | |
| Rodzaj budynku | Budynek apartamentowy | |
| Rok budowy | 2009 | |
| Materiał | Cegła | |
| Liczba pokoi | 3 | |
| Powierzchnia | 78 m2 | |
| Cena | 3 700 zł |
Zapraszamy do zapoznania się z ofertą wynajmu eleganckiego mieszkania w apartamentowcu powstałym na skutek rewitalizacji kamienicy. Budynek przeszedł całkowity remont.
Mieszkanie o metrażu 78,4 m2 mieści się na 2 piętrze, z widokiem na park im. Władysława Andersa.
Konstrukcja i materiały:
Budynek z cegły pełnej oraz z betonu. Izolacja termiczna, tynk cementowo-wapienny. Klatka schodowa z cichobieżną windą, elegancko wykończona.
Wszystkie instalacje nowe, ogrzewanie z węzła cieplnego usytuowanego wewnątrz budynku zasilanego z miejskiej sieci ciepłowniczej. Grzejniki Purmo stalowe z regulacją. Wentylacja grawitacyjna, dodatkowo klimatyzacja wysokiej jakości, firmy Mitsubishi w każdym pomieszczeniu. Przy wejściu wideofon elektroniczny. Stolarka okienna, drzwiowa oraz podłoga dębowa (lita deska)
W salonie znajdują się meble z litego drewna, w oknach rolety zaciemniające. Widok z okna na park, zielona okolica.
Dwie sypialnie z oknami na ładne podwórko, umeblowane. Jedna z sypialni posiada dużą, całkowicie umeblowaną garderobę zamkniętą przesuwnymi drzwiami z lustrem.
Kuchnia z frontami z drewna, dodatkowo sprzęt agd marki AEG.
Łazienka z kaflami w kolorze trawertynu, drewniane zabudowy szafek, pralka.
Bardzo stylowa klatka schodowa nawiązująca do stylistyki sąsiadujących kamienic.
Do mieszkania przynależy komórka lokatorska.
Opłaty: Czynsz w wysokości ok.500 zł (wywóz śmieci, fundusz remontowy, ogrzewanie części wspólnych), dodatkowo woda, ogrzewanie, oraz prąd według zużycia.
Mieszkanie warte uwagi ze względu na bardzo dobrą lokalizację a także na jakość wykończenia wnętrza oraz zewnętrza budynku. Idealny wybór dla studentów, blisko uczelnie, kawiarnie i sklepy.
W okolicy park, galerie handlowe, kawiarnie, komunikacja miejska.
Zapraszam na prezentacje, klucze w biurze.
| Rodzaj oferty | Wynajem mieszkania | ||
|---|---|---|---|
| Liczba pokoi | 3 | ||
| Liczba łazienek | 1 | ||
| Liczba pięter | 4 | ||
| Powierzchnia | 78 m2 | ||
| Cena | 3 700 zł | ||
| Forma prawna | Własność | ||
| Forma prawna gruntu | Własność | ||
| Rodzaj budynku | Budynek apartamentowy | ||
| Rok budowy | 2009 | ||
| Materiał | Cegła | ||
| Rodzaj ogrzewania | co miejskie | ||
| Dostępne w okolicy | szpital, kościół, bar, bank, przedszkole, szkoła, centrum handlowe, restauracja, plac zabaw, fitnes | ||
| Dodatkowo | winda    recepcja    monitoring     |