POWIERZCHNIA (M²)

CENA ZA M²

PIĘTRO

LICZBA POKOI

ROK BUDOWY

RYNEK

NUMER OFERTY

Poprzednia oferta
Powrót
Następna oferta

Białuń ! Okazja, dom w cenie mieszkania !

Dom na sprzedaż

Lokalizacja Białuń
Numer oferty ROY03649
Rok budowy 2024
Materiał Bloczki
Liczba pokoi 3
Powierzchnia 82 m2
Działka 400 m2
Cena 439 000 zł

Opis

Świetna oferta, dom w cenie mieszkania !

Na sprzedaż dom w zabudowie bliźniaczej położony w Białuniu zaledwie 7 km od Goleniowa, 35 km od prawobrzeżnej części Szczecina.


Nieruchomość mieści się na działce o powierzchni 400 m2 , w bliskim sąsiedztwie lasu oraz nowo budowanych domów jednorodzinnych.


Dom oddawany jest w stanie surowym zamkniętym


Termin ukończenia budowy IV kwartał 2024 r.


Stan surowy zamknięty obejmuje:

- Ocieplenie 20 cm styropian grafitowy

- Elewacja

- Okna trzyszybowe

- Dachówka ceramiczna

- Szczelne szambo

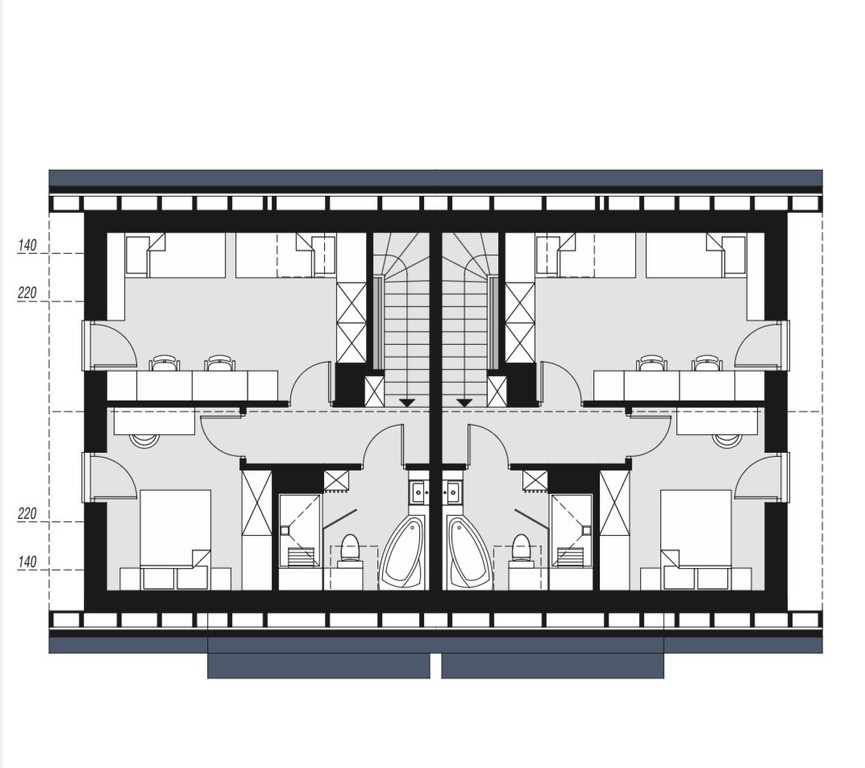
Na powierzchnię 82,45 m2 ( 71,28 m2 powierzchni użytkowej ) składają się:


Parter:

- Wiatrołap 3,65 m2

-Kotłownia 4,41 m2

- Toaleta 2,69 m2

- Salon z jadalnią, aneksem kuchennym z bezpośrednim wyjściem na taras


Piętro:


- 2 sypialnie 12,04m2, 10 m2

- Łazienka 4 m2


Dom wykończony materiałami najwyższej jakości, a projekt jest zgodny z aktualnymi normami dotyczącymi energooszczędności.


Lokalizacja

Nieruchomość położona w Białuniu, 7 km od Goleniowa, 19 km od Stepnicy, 35 km od Szczecina. W pobliżu znajdują się szkoła, przedszkole sklep, przystanek darmowej komunikacji miejskiej.

Bardzo spokojna i cicha okolica.

Przyszli właściciele maogą liczyć na ciszę i spokój, a jednocześnie na dogodny dojazd do Goleniowa.


Szczegóły
Rodzaj oferty Dom na sprzedaż
Liczba pokoi 3
Liczba łazienek 1
Liczba pięter 1
Powierzchnia 82 m2
Działka 400
Cena 439 000 zł (5 324 zł/m2)
Forma prawna Własność
Rok budowy 2024
Droga dojazdowa Utwardzona
Materiał Bloczki
Stan budynku Surowy zamknięty
Dodatkowo ogród