POWIERZCHNIA (M²)

CENA ZA M²

PIĘTRO

LICZBA POKOI

ROK BUDOWY

RYNEK

NUMER OFERTY

Poprzednia oferta
Powrót
Następna oferta

Mieszkanie 2-pokojowe w nowej inwestycji

Mieszkanie na sprzedaż

Lokalizacja Goleniów
Numer oferty MTN13181
Rodzaj budynku Budynek apartamentowy
Rok budowy 2024
Materiał Silikat
Liczba pokoi 2
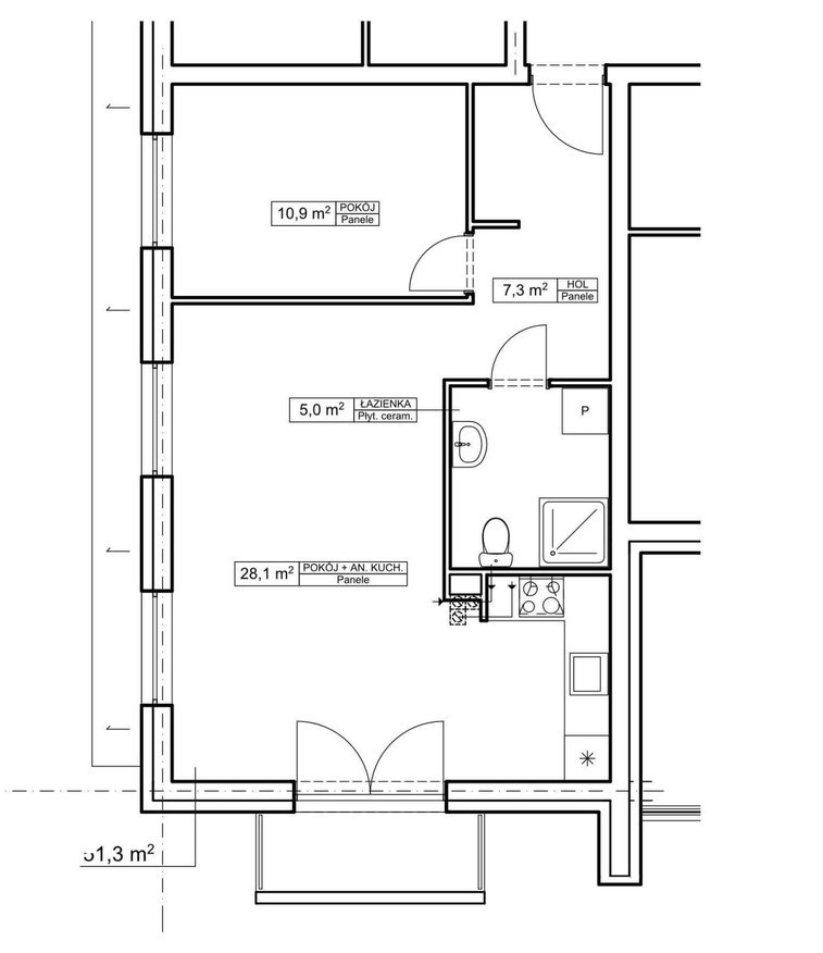
Powierzchnia 51 m2
Cena 420 000 zł

Opis

Na sprzedaż apartament 2-pokojowy o powierzchni 51,3m2 w nowej inwestycji w Goleniowie.
Przedmiotowa nieruchomość znajduje się w jednoklatkowej w niskiej dwupiętrowej zabudowie apartamentowej z podziemnym parkingiem wielostanowiskowym oraz cichobieżną windą.

Na powierzchnie mieszkania słada się:
- przedsionek
- salon z wyjściem na balkon
- aneks kuchenny
- sypialnia
- łazienka

W mieszkaniu zamontowane zostaną okna PCV 3-szybowe oraz drzwi antywłamaniowe PORTA.
Instalacja centralnego ogrzewania: miejskie SEC, grzejniki panelowe z głowicami termostatycznymi.
W inwestycji dostępne są zarówno kawalerki, jak i większe lokale, idealne dla rodzin z dziećmi.
Po przeniesieniu praw własności istnieje możliwość kompleksowego wykończenia zakupionych mieszkań. Wszystko według indywidualnych uzgodnień.
Na terenie osiedla będzie także funkcjonowała firma dedykowana do kompleksowej obsługi gotowych mieszkań pod względem inwestycyjnym.
Do jej zadań należeć będzie nie tylko wyszukanie najrentowniejszej oferty wynajmu oraz dbanie o jego ciągłość, lecz także regularny dogląd inwestycji zarówno pod względem finansowym, jak i fizycznym.

Zapraszamy do kontaktu.


Szczegóły
Rodzaj oferty Mieszkanie na sprzedaż
Liczba pokoi 2
Liczba łazienek 1
Liczba pięter 2
Powierzchnia 51 m2
Cena 420 000 zł (8 187 zł/m2)
Forma prawna Własność
Rodzaj budynku Budynek apartamentowy
Rok budowy 2024
Materiał Silikat
Stan budynku Idealny
Dodatkowo winda