POWIERZCHNIA (M²)

CENA ZA M²

PIĘTRO

LICZBA POKOI

ROK BUDOWY

RYNEK

NUMER OFERTY

Poprzednia oferta
Powrót
Następna oferta

2 pokoje na Niebuszewie z loggią

Mieszkanie na sprzedaż

Lokalizacja Szczecin Niebuszewo
Numer oferty IDN33271
Rodzaj budynku Kamienica
Rok budowy 1938
Materiał Cegła
Liczba pokoi 2
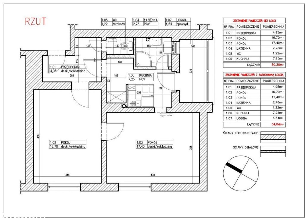
Powierzchnia 50 m2
Cena 420 000 zł

Opis

Mieszkanie narożnikowe w zespole zabudowy wielorodzinnej z końca lat 30. XX wieku. Budynek po termomodernizacji elewacji, remoncie dachu i klatki schodowej. Wyremontowane zagospodarowanie wnętrza kwartału zabudowy, w którym zlokalizowany jest lokal (plac zabaw, zieleń, miejsca postojowe, teren zamknięty). Ciekawy układ funkcjonalny z możliwościami korekt aranżacyjnych. Zabudowana loggia, stanowiąca integralną część mieszkania o powierzchni 4,54 m2, powiększająca jego nominalną powierzchnię użytkową do 54,84 m2. Całkowicie zachowana i poddana renowacji oryginalna, modernistyczna, wewnętrzna stolarka drzwiowa. Dwa piony wodociągowo-kanalizacyjne, pion gazowy z możliwością instalacji wewnętrznej instalacji gazowej. Ogrzewanie CO miejskie. Ciepła woda aktualnie podgrzewana elektrycznie.

W ostatnich latach mieszkanie było użytkowane, jako biuro projektowe, a następnie częściowo wyremontowane z zamiarem najmu.


Szczegóły
Rodzaj oferty Mieszkanie na sprzedaż
Liczba pokoi 2
Liczba pięter 3
Powierzchnia 50 m2
Cena 420 000 zł (8 349 zł/m2)
Rodzaj budynku Kamienica
Rok budowy 1938
Materiał Cegła