Mieszkanie na sprzedaż
| Lokalizacja | Pobierowo | |
|---|---|---|
| Numer oferty | ROY03633 | |
| Rodzaj budynku | Budynek apartamentowy | |
| Rok budowy | 2022 | |
| Materiał | Silikat | |
| Liczba pokoi | 1 | |
| Powierzchnia | 41 m2 | |
| Cena | 537 216 zł |
Na sprzedaż atrakcyjny apartament z ogródkiem w topowej lokalizacji Pobierowa
Nieruchomość znajduje się na parterze nowoczesnego apartamentowca położonego w Pobierowie blisko plaży. Za dodatkową opłatą istnieje możliwość zakupu miejsca postojowego.
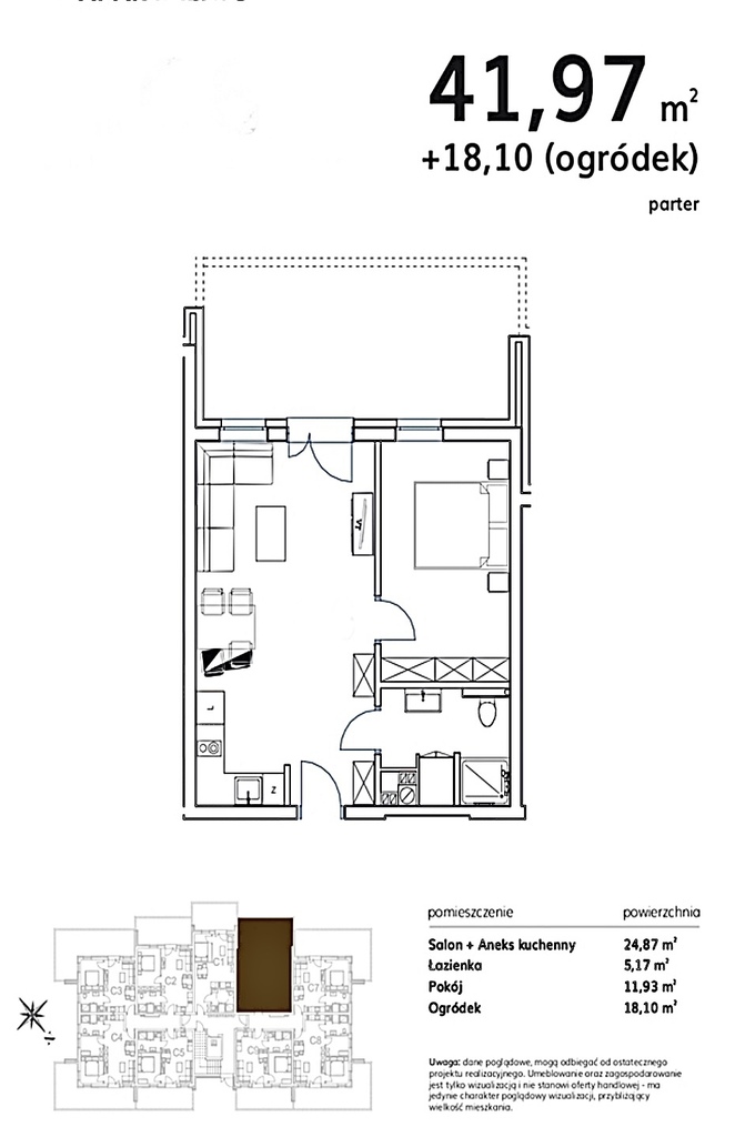
Na powierzchnię 41,57 m2 składają się:
- Salon z aneksem kuchennym z bezpośrednim wyjściem na ogródek ( 18,10 m2 )
- Jasna, przestronna sypialnia
- Łazienka z wc
- Hol
Wykończenie
Apartament sprzedawany w stanie deweloperskim. Posiada duże i szerokie okna , które zapewniają naturalne światło i piękne widoki.
W ramach dodatkowej usługi proponujemy wykończenie " pod klucz ".
Udogodnienia
Do dyspozycji mieszkańców na terenie kompleksu znajdują się:
- Basen
- Plac zabaw
- Pokój zabaw dla dzieci
- Wiaty rowerowe
Zakup apartamentu w naszej inwestycji jest świetną lokatą kapitału, z możliwością zarabiania na wynajmie przez cały rok.
Podana cena apartamentu jest ceną netto, do ceny należy doliczyć 23% VAT
Zapraszam do kontaktu i na prezentację.
| Rodzaj oferty | Mieszkanie na sprzedaż | ||
|---|---|---|---|
| Liczba pokoi | 1 | ||
| Liczba łazienek | 1 | ||
| Liczba pięter | 3 | ||
| Powierzchnia | 41 m2 | ||
| Cena | 537 216 zł (12 800 zł/m2) | ||
| Forma prawna | Własność | ||
| Rodzaj budynku | Budynek apartamentowy | ||
| Rok budowy | 2022 | ||
| Droga dojazdowa | Asfaltowa | ||
| Materiał | Silikat | ||
| Stan budynku | Idealny | ||
| Rodzaj ogrzewania | gazowe | ||
| Dostępne w okolicy | park, las, restauracja, bar, plac zabaw, apteka, sklep, morze | ||
| Dodatkowo | alarm    internet    telewizja kablowa    winda    recepcja    ochrona    monitoring     |