Dom na sprzedaż
| Lokalizacja | Szczecin Warszewo | |
|---|---|---|
| Numer oferty | CIT25166 | |
| Rok budowy | 2023 | |
| Materiał | Bloczki | |
| Liczba pokoi | 4 | |
| Powierzchnia | 133 m2 | |
| Działka | 320 m2 | |
| Cena | 1 129 000 zł |
Oferta sprzedaży domów w zabudowie bliźniaczej na szczecińskim Warszewie .
KUPUJĄCY NIE PŁACI 2% PCC
W TEJ OFERCIE BUDYNEK 2 , DZIAŁKA 320 M2 , OGRÓD 199 M2
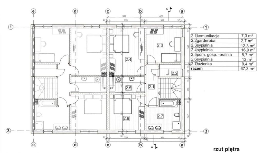
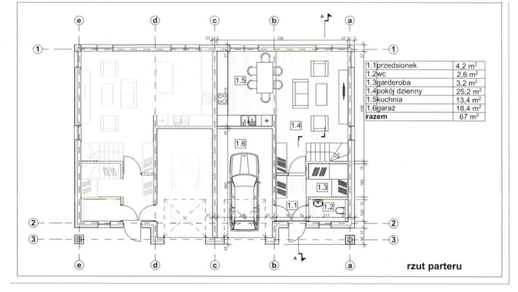
ZESTAWIENIE POWIERZCHNI
PARTER - 67 m2
- pokój dzienny - 25,2 m2
- kuchnia - 13,4 m2
- garderoba - 3,2 m2
- WC - 2,6 m2
- komunikacja - 4,2 m2
- garaż - 18,4 m2
PIĘTRO - 67,3 m2
- sypialnia 1 - 12,3 m2
- sypialnia 2 - 16,9 m2
- sypialnia 3 - 13 m2
- łazienka - 9,4 m2
- komunikacja - 7,3 m2
- garderoba - 2,7 m2
- pom. gospodarcze - 5,7 m2
TECHNOLOGIA WYKONANIA
- fundament - płyta żelbetowa, docieplona termicznie , zabezpieczona przeciwwilgociowo technologia Remmers
- ściany zewnętrzne konstrukcyjne - gazobeton H+H 18 cm
- ściany wewnętrzne konstrukcyjne - gazobeton H+H 18 cm
- ściany działowe - gazobeton H+H 12 cm
-ściany wewnętrzne między lokalowe
- tynki wewnętrzne - gipsowe na mokro
- w bliźniaku : między lokalami Silikat Barlinek 24 cm izolacyjność akustyczna 57 dB
- w szeregowcu : 2x gazobeton H+H 18 cm
- stropy niemieckiej firmy DENNERT BAUSTOFFWELT system bez tynkowy - DX-DECKE
- schody wewnętrzne systemowe - SCAN BET
- komin - murowany systemowy SCHIDEL z wkładem ze stali kwasoodpornej
- dachówka - cementowa CREATON KAPSTADT DURATOP PRO
- rynny oraz rury spustowe - MARLEY PCV
- okna PCV trójszybowe na profilach VEKA montowane na ciepło
- ocieplenie - styropian grafitowy , 15 cm
INSTALACJE
- CO - PE - kocioł gazowy DE DITRICH kondensacyjny
- elektryczna - osprzęt SIMON , zewnętrzna - 3 punkty oświetleniowe
- alarmowa - przewody przygotowane do montażu
- wodno-kanalizacyjna , deszczowa , gazowa
| Rodzaj oferty | Dom na sprzedaż | ||
|---|---|---|---|
| Liczba pokoi | 4 | ||
| Liczba łazienek | 1 | ||
| Liczba pięter | 1 | ||
| Powierzchnia | 133 m2 | ||
| Działka | 320 | ||
| Cena | 1 129 000 zł (8 463 zł/m2) | ||
| Forma prawna | Własność | ||
| Forma prawna gruntu | Własność | ||
| Rok budowy | 2023 | ||
| Droga dojazdowa | Asfaltowa | ||
| Materiał | Bloczki | ||
| Stan budynku | Stan deweloperski | ||
| Dodatkowo | ogród     |