Dom na sprzedaż
| Lokalizacja | Szczecin Pilchowo | |
|---|---|---|
| Numer oferty | BON45873 | |
| Rok budowy | 2022 | |
| Materiał | Silikat | |
| Liczba pokoi | 5 | |
| Powierzchnia | 155 m2 | |
| Działka | 437 m2 | |
| Cena | 1 180 000 zł |
Planujesz skredytować to marzenie – zadzwoń.
Dom w zabudowie bliźniaczej położony w cichej części Pilchowa z dala od ruchliwej ulicy. Bezpośrednie sąsiedztwo Puszczy Wkrzańskiej.
Do każdego budynku przynależy działka 437m2. Teren ogrodzony z dojazdem utwardzoną drogą.
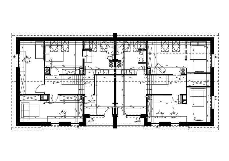
Powierzchnia całkowita 155,5 m2, w której skład wchodzą:
Parter
- Salon z aneksem kuchennym
- Łazienka
- Garaż
- Pomieszczenie gospodarcze
Piętro
- 4 sypialnie
- łazienka
Budynek bardzo starannie wykonany z wysokiej klasy materiałów. Antywłamaniowe drzwi wejściowe i brama garażowa Wiśniowski. Okna o średnim współczynniku ciepła 0,75 W/m2*K
Kominy spalinowe pod kominek Hoch. Na parterze ogrzewanie podłogowe - pompa ciepła Nibe.
Przygotowana instalacja pod panele fotowoltaiczne.
Budynek w pełni ogrodzony z pięknie zagospodarowanym ogrodem.
Nieruchomość z możliwością prowadzenia działalności gospodarczej i mieszkaniowej.
Zapraszam na prezentację.
| Rodzaj oferty | Dom na sprzedaż | ||
|---|---|---|---|
| Liczba pokoi | 5 | ||
| Liczba łazienek | 2 | ||
| Liczba pięter | 1 | ||
| Powierzchnia | 155 m2 | ||
| Działka | 437 | ||
| Cena | 1 180 000 zł (7 588 zł/m2) | ||
| Forma prawna | Własność | ||
| Rok budowy | 2022 | ||
| Materiał | Silikat | ||
| Stan budynku | Stan deweloperski |