POWIERZCHNIA (M²)

CENA ZA M²

PIĘTRO

LICZBA POKOI

ROK BUDOWY

RYNEK

NUMER OFERTY

Poprzednia oferta
Powrót
Następna oferta

✩Luksusowy Penthouse✩ | Taras + 2 balkony |

Mieszkanie na sprzedaż

Lokalizacja Świnoujście
ul. Bohaterów Września
Numer oferty KMF26564
Rodzaj budynku Kamienica
Rok budowy 2023
Materiał Cegła
Liczba pokoi 2
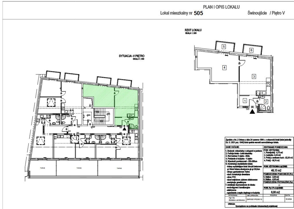
Powierzchnia 48 m2
Cena 952 974 zł

Opis

Luksusowy Penthouse z Widokiem na Kanał Piastowski

Oferujemy niezwykły penthouse z przestronnym tarasem o powierzchni około 25 m², usytuowany na ostatnim piętrze budynku (nr. 505), z pięknym widokiem na Kanał Piastowski.
Nowoczesne, funkcjonalne mieszkanie dwupokojowe o powierzchni 48,13 m², z dwoma balkonami, zaledwie 15 minut spacerem od jednej z najpiękniejszych polskich plaż.


Układ Pomieszczeń:

•Salon z aneksem kuchennym: ok. 22,30 m²
•Pokój: ok. 18,74 m²
•Przedpokój: ok. 3,75 m²
•Łazienka: ok. 3,34 m²
•2 Balkony: każdy po 3 m² z przeszklonymi balustradami
•Taras: ok. 25 m² z przeszkloną balustradą i widokiem na Kanał Piastowski

Stan Deweloperski:

•Klimatyzacja
•Ogrzewanie podłogowe
•Automatyczne okno połaciowe
•Akustyczne drzwi wejściowe
•Gipsowe tynki
•Wylewki betonowe pod posadzki
•Trzyszybowe, białe okna PCV
•instalacja centralnego ogrzewania
•instalacja wodno-kanalizacyjna
•instalacja elektryczna
•Opomiarowanie mediów
•Domofon
•TV kablowa,
•internet światłowodowy

Media:

•Ogrzewanie i ciepła woda z sieci miejskiej

Budynek:

•Nowy, oddany do użytku w grudniu 2023 r.
•Nowoczesna elewacja, balkony, loggie
•Winda
•Elegancka klatka schodowa
•Rozbudowa piątego piętra z tarasami i widokiem na Kanał Piastowski i Park Zdrojowy

Doskonała Lokalizacja:

•15 minut spacerem do plaży
•Centrum miasta
•Deptak – ulubione miejsce turystów
•2 minuty do przeprawy promowej
•2 minuty do Parku Zdrojowego
•1 minuta do wybrzeża Kanału Piastowskiego
•10 minut do przystani jachtowej
•Liczne kawiarnie i restauracje

Atrakcyjna Infrastruktura:

•Ogólnodostępne miejsca postojowe
•Sklepy: Biedronka, Lidl, inne usługowo-handlowe
•Apteka,
•poczta, banki
•Pasaż handlowy CENTRUM
•5 minut do centrum handlowego CORSO

Dostępny jest również podobny apartament:


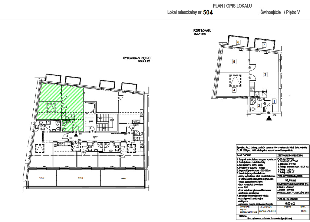
504✩ o pow. 51,45 m2 + taras (25 m2) + dwa balkony (3 m2) od strony południowej, położony na V piętrze.


Oferta Idealna dla osób pragnących atrakcyjnego apartamentu w sercu Świnoujścia, w doskonałej lokalizacji – tylko 15 minut do plaży.
Mieszkanie doskonale nadaje się zarówno do własnego użytku, jak i jako inwestycja pod wynajem.

Mieszkania z wykończeniem pod klucz w cenie 9900 zł netto.
Koszt wykończenia 
na V piętrze (zależnie od mieszkania) wynosi od 9900 zł do 25000 zł netto plus materiał.
Zapraszamy do kontaktu, aby uzyskać więcej informacji


Nie zwlekaj i umów się na prezentację!





Szczegóły
Rodzaj oferty Mieszkanie na sprzedaż
Liczba pokoi 2
Liczba łazienek 1
Liczba pięter 5
Powierzchnia 48 m2
Cena 952 974 zł (19 800 zł/m2)
Forma prawna Własność
Rodzaj budynku Kamienica
Rok budowy 2023
Materiał Cegła
Rodzaj ogrzewania podłogowe, co miejskie
Komunikacja kolej, autobus
Dodatkowo winda    monitoring