POWIERZCHNIA (M²)

CENA ZA M²

PIĘTRO

LICZBA POKOI

ROK BUDOWY

RYNEK

NUMER OFERTY

Poprzednia oferta
Powrót
Następna oferta

OKAZJA Dom wolnostojący w Cisewie 4km do J.Miedwie

Dom na sprzedaż

Lokalizacja Cisewo
Numer oferty ROY03514
Rok budowy 2024
Materiał Ytong
Liczba pokoi 5
Powierzchnia 183 m2
Działka 560 m2
Cena 690 000 zł

Opis

Wyjątkowa okazja! Na sprzedaż dom wolnostojący w Cisewie Gmina Kobylanka, nieopodal urokliwego lasu gdzie spokój i cisza są Twoimi sąsiadami.

Nieruchomość o całkowitej powierzchni 183,83 m2 ( 124,66 m2 powierzchnia użytkowa), usytuowany na działce o powierzchni 560 m2.

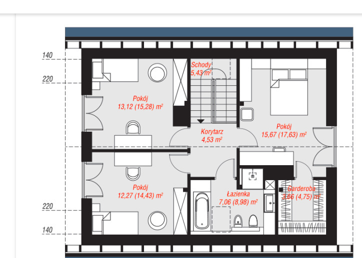
Na powierzchnię 124,66 m2 składają się:

Parter:

- Wiatrołap

- Hol

- Salon z jadalnią, aneksem kuchennym o powierzchni 35,70 m2 oraz bezpośrednim wyjściem na taras o powierzchni 40 m2

- Kotłownia

- Gabinet

- Łazienka

Piętro:

- Sypialnia z garderobą 19,33 m2

- Przedpokój

- Łazienka

- 2 sypialnie

Dom w stanie deweloperskim wyposażony w nowoczesną pompę ciepła, dodatkowo elewacja ocieplona 20 cm styropianem grafitowym, co zapewnia optymalne izolowanie termiczne.

W ramach wyposażenia domu znajduje się:

- Przydomowa oczyszczalnia ścieków

- Rolety antywłamaniowe elektrycznie sterowane

- Okna trzyszybowe

- Drzwi wejściowe oraz okna w kolorze antracytowym

- Kompleksowa instalacja alarmowa oraz monitoring co podnosi poziom bezpieczeństwa

- Wyprowadzona instalacja pod oświetlenie ogrodu

- Stacja ładująca do aut elektrycznych

- Przed budynkiem chodnik, podjazd oraz taras wyłożony kostką brukową zapewnia estetyczny wygląd.

Nie czekaj dłużej z decyzją. Wszystko czego potrzebujesz znajduje się w tym wyjątkowym domu wolnostojącym, który czeka na Ciebie.



Termin zakończenia inwestycji IV kwartał 2024 r.


Działaj już teraz i umów się na prezentację.






Szczegóły
Rodzaj oferty Dom na sprzedaż
Liczba pokoi 5
Liczba łazienek 2
Liczba pięter 1
Powierzchnia 183 m2
Działka 560
Cena 690 000 zł (3 753 zł/m2)
Forma prawna Własność
Forma prawna gruntu Własność
Rok budowy 2024
Droga dojazdowa Kostka brukowa
Materiał Ytong
Stan budynku Stan deweloperski
Rodzaj ogrzewania pompa ciepła
Dodatkowo alarm    ogród    monitoring