Mieszkanie na sprzedaż
| Lokalizacja |
Szczecin Centrum al. Wyzwolenia |
|
|---|---|---|
| Numer oferty | KMF26514 | |
| Rodzaj budynku | Wieżowiec | |
| Rok budowy | 2022 | |
| Materiał | Stal | |
| Liczba pokoi | 2 | |
| Powierzchnia | 48 m2 | |
| Cena | 804 000 zł |
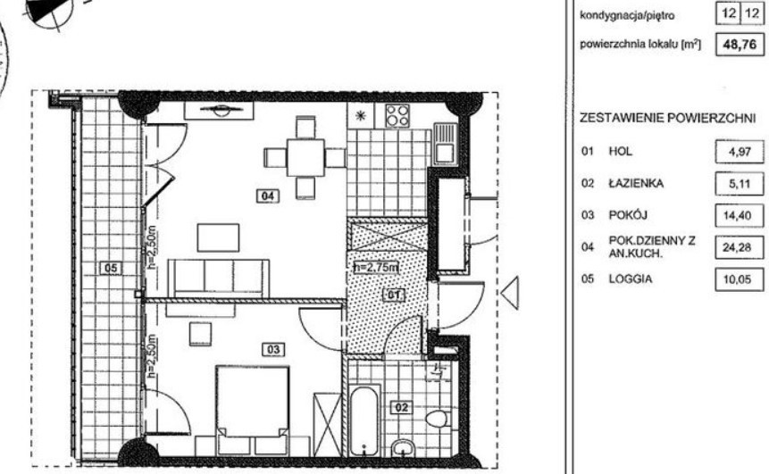
Zapraszamy do zapoznania się z wyjątkowym apartamentem o powierzchni 48,76 m², zlokalizowanym na 12 piętrze nowoczesnego budynku apartamentowo-biurowego Hanza Tower w centrum Szczecina. Apartament oferuje niesamowity widok na centrum miasta oraz duży, prawie 10-metrowy balkon o ekspozycji południowej.
BUDYNEK:
Hanza Tower to luksusowy apartamentowiec, w którym mieszkańcy mają dostęp do strefy spa z zespołem basenowym oraz dwiema saunami - suchą i parową. Dodatkowo na terenie budynku znajduje się recepcja, pralnia samoobsługowa oraz restauracja z różnorodną ofertą kulinarnej rozrywki.
STAN DEWELOPERSKI:
Apartament składa się z pokoju dziennego z aneksem kuchennym (24,28 m²), sypialni (14,40 m²), holu (4,97 m²), łazienki (5,11 m²) oraz przestronnej loggii (10,05 m²).
MIEJSCE POSTOJOWE:
Dodatkowo istnieje możliwość zakupu miejsca postojowego w hali garażowej w cenie 100 000 zł.
Zapraszamy do kontaktu telefonicznego. Mieszkanie jest gotowe do wydania od zaraz.
LOKALIZACJA:
Apartament znajduje się w prestiżowym budynku Hanza Tower, w samym centrum Szczecina. W pobliżu znajdują się galeria handlowa Galaxy oraz Fala, liczne restauracje, puby, sklepy, szkoły i uczelnie.
| Rodzaj oferty | Mieszkanie na sprzedaż | ||
|---|---|---|---|
| Liczba pokoi | 2 | ||
| Liczba pięter | 30 | ||
| Powierzchnia | 48 m2 | ||
| Cena | 804 000 zł (16 488 zł/m2) | ||
| Forma prawna | Własność | ||
| Rodzaj budynku | Wieżowiec | ||
| Rok budowy | 2022 | ||
| Materiał | Stal | ||
| Rodzaj ogrzewania | co miejskie | ||
| Komunikacja | autobus, , tramwaj | ||
| Dodatkowo | winda    recepcja    ochrona    monitoring     |