POWIERZCHNIA (M²)

CENA ZA M²

PIĘTRO

LICZBA POKOI

ROK BUDOWY

RYNEK

NUMER OFERTY

Poprzednia oferta
Powrót
Następna oferta

Powierzchnia magazynowa blisko centrum

Wynajem magazynu

Lokalizacja Szczecin Śródmieście
Numer oferty INW31404
Rok budowy 1930
Powierzchnia 169 m2
Cena 7 740 zł

Opis

Oferujemy do wynajęcia pomieszczenie magazynowego w doskonałej lokalizacji - blisko Centrum miasta, zaledwie 3 min jazdy od Galaxy. Idealna propozycja dla osób poszukujących przestrzeni pod małą hurtownię czy pomieszczeń do przechowywania materiałów. Bardzo dobre połączenie komunikacyjne. W bezpośrednim sąsiedztwie budynku przystanek tramwajowy i autobusowy

Oferowana nieruchomość mieści się w budynku biurowo - magazynowym na poziomie 0, wejście do hali bez barier
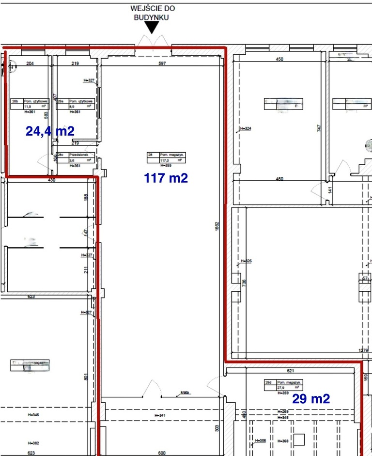
Powierzchnia, blisko 170 m2, w skład której wchodzą
- Magazyn główny: 117 m² (kształt prostokąta)
- Mniejsze pomieszczenie magazynowe z bezpośrednim wejściem z magazynu głównego o pow. 29,9 m²
- Dodatkowo pomieszczenia biurowe: 11,9 m², 8,9 m²

Wysokość: od 3,55 m do 3,61 m
Na podłogach wylewka betonowa.
W lokalu zamontowane grzejniki - ogrzewanie z sieci miejskiej.

Wolne od maja 2024. Możliwość odświeżenia lokalu przez Właściciela

Zapraszamy do kontaktu


Szczegóły
Rodzaj oferty Wynajem magazynu
Powierzchnia 169 m2
Cena 7 740 zł (45 zł/m2)
Forma prawna Własność
Forma prawna gruntu Użytkowanie wieczyste
Rok budowy 1930
Droga dojazdowa Asfaltowa
Dodatkowo ochrona