POWIERZCHNIA (M²)

CENA ZA M²

PIĘTRO

LICZBA POKOI

ROK BUDOWY

RYNEK

NUMER OFERTY

Poprzednia oferta
Powrót
Następna oferta

Ekskluzywny apartament 81,15 m2 w sercu miasta!

Mieszkanie na sprzedaż

Lokalizacja Szczecin Śródmieście-Centrum
Numer oferty KMF26498
Rodzaj budynku Budynek apartamentowy
Rok budowy 2024
Materiał Mieszany
Liczba pokoi 3
Powierzchnia 81 m2
Cena 1 298 320 zł

Opis

Zapraszamy na prezentację nowego apartamentowca w centrum miasta!


Idealna lokalizacja dla osób ceniące sobie luksusowy styl życia a zarazem chcących pozostać w rytmie miasta!
Mamy dla Państwa wyjątkową ofertę 3-pokojowej nieruchomości w stanie deweloperskim o powierzchni 81,15 m2, pozwalając na adaptację w sposób jaki się jeszcze nie śniło.

Nieruchomość od dewelopera sama w sobie posiada już dodatki, o których się nie śni by mieć w centrum miasta.
Deweloper pomyślał nawet o windzie prowadzącej do Twojego przyszłego apartamentu! 


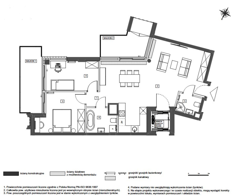
Na powierzchnię użytkową apartamentu składają się:
- Hol - 2,25m2
- Salon + Aneks kuchenny - 44,29m2
- Sypialnia 1 - 12,85 m2
- Sypialnia 2 - 11,12m2
- Toaleta - 2,99m2
- Łazienka - 5,02m2
- Balkon - 10,37m2
- Balkon - 11,22 m2


Apartamentowiec wyposażony w usługi/udogodnienia takie jak:
- Consierge
- Apartament Service
- Strefę Wellnes&Spa
- Strefę relaksu
- Restaurację
- Taras w części wspólnej
- Podziemny garaż

Z apartamentowca blisko znajdują się:
- Szkoły
- Uczelnie
- Basen
- Zajęcia sportowe 
- Park
- Urząd miasta
- Komunikacja miejska ( tramwaj, autobus) 

Nieruchomość prezentowana na zdjęciach jest w stanie deweloperskim, istnieje możliwość zakupu wykończonej nieruchomości pod klucz.
Zadzwoń aby dowiedzieć się więcej o możliwościach i umów się na prezentację!



Szczegóły
Rodzaj oferty Mieszkanie na sprzedaż
Liczba pokoi 3
Liczba łazienek 1
Liczba pięter 5
Powierzchnia 81 m2
Cena 1 298 320 zł (16 000 zł/m2)
Forma prawna Własność
Rodzaj budynku Budynek apartamentowy
Rok budowy 2024
Materiał Mieszany
Rodzaj ogrzewania co miejskie
Komunikacja autobus, tramwaj
Dostępne w okolicy restauracja, centrum handlowe, przedszkole, park, plac zabaw, apteka, Żłobek, sklep, uczelnia, przychodnia lekarska, hala sportowa, kościół, zabudowa niska, fitnes, bank, basen
Dodatkowo alarm    winda    recepcja    ochrona    monitoring