Mieszkanie na sprzedaż
| Lokalizacja | Szczecin Śródmieście-Centrum | |
|---|---|---|
| Numer oferty | KMF26497 | |
| Rodzaj budynku | Budynek apartamentowy | |
| Rok budowy | 2024 | |
| Materiał | Mieszany | |
| Liczba pokoi | 4 | |
| Powierzchnia | 108 m2 | |
| Cena | 1 795 590 zł |
Zapraszamy na prezentację nowego apartamentowca w centrum miasta!
Idealna lokalizacja dla osób ceniące sobie luksusowy styl życia a zarazem chcących pozostać w rytmie miasta!
Mamy dla Państwa wyjątkową ofertę 4-pokojowej nieruchomości w stanie deweloperskim o powierzchni 108,83 m2, pozwalając na adaptację w sposób jaki się jeszcze nie śniło.
Nieruchomość od dewelopera sama w sobie posiada już dodatki, o których się nie śni by mieć w centrum miasta.
Deweloper pomyślał nawet o windzie prowadzącej do Twojego przyszłego apartamentu!
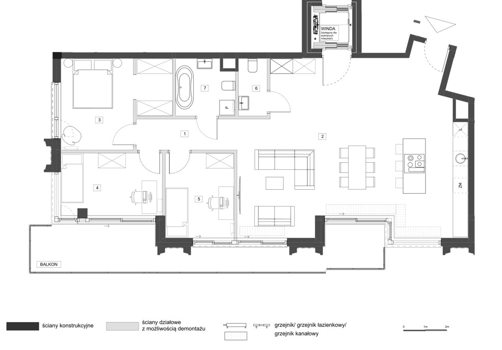
Na powierzchnię użytkową apartamentu składają się:
- Hol - 4,93m2
- Salon + Aneks kuchenny - 59,09m2
- Sypialnia 1 - 13,92 m2
- Sypialnia 2 - 9,92m2
- Sypialnia 3 - 9,23m2
- Toaleta - 2,56m2
- Łazienka - 5,09m2
- Balkon - 22,13m2
Apartamentowiec wyposażony w usługi/udogodnienia takie jak:
- Consierge
- Apartament Service
- Strefę Wellnes&Spa
- Strefę relaksu
- Restaurację
- Taras w części wspólnej
- Podziemny garaż
Z apartamentowca blisko znajdują się:
- Szkoły
- Uczelnie
- Basen
- Zajęcia sportowe
- Park
- Urząd miasta
- Komunikacja miejska ( tramwaj, autobus)
Zadzwoń i umów się na prezentację nieruchomości!
| Rodzaj oferty | Mieszkanie na sprzedaż | ||
|---|---|---|---|
| Liczba pokoi | 4 | ||
| Liczba łazienek | 1 | ||
| Liczba pięter | 5 | ||
| Powierzchnia | 108 m2 | ||
| Cena | 1 795 590 zł (16 499 zł/m2) | ||
| Forma prawna | Własność | ||
| Rodzaj budynku | Budynek apartamentowy | ||
| Rok budowy | 2024 | ||
| Materiał | Mieszany | ||
| Rodzaj ogrzewania | co miejskie | ||
| Komunikacja | tramwaj, autobus | ||
| Dostępne w okolicy | basen, bank, fitnes, zabudowa niska, kościół, hala sportowa, plac zabaw, park, przedszkole, centrum handlowe, restauracja, przychodnia lekarska, uczelnia, sklep, Żłobek, apteka | ||
| Dodatkowo | alarm    winda    recepcja    ochrona    monitoring     |