POWIERZCHNIA (M²)

CENA ZA M²

PIĘTRO

LICZBA POKOI

ROK BUDOWY

RYNEK

NUMER OFERTY

Poprzednia oferta
Powrót
Następna oferta

Murowana hala magazynowa do wynajęcia

Wynajem obiektu komercyjnego

Lokalizacja Szczecin os. Reda
Numer oferty PAT21192
Rodzaj budynku Magazynowo-biurowy
Rok budowy 1930
Powierzchnia 898 m2
Działka 2250 m2
Cena 20 000 zł

Opis

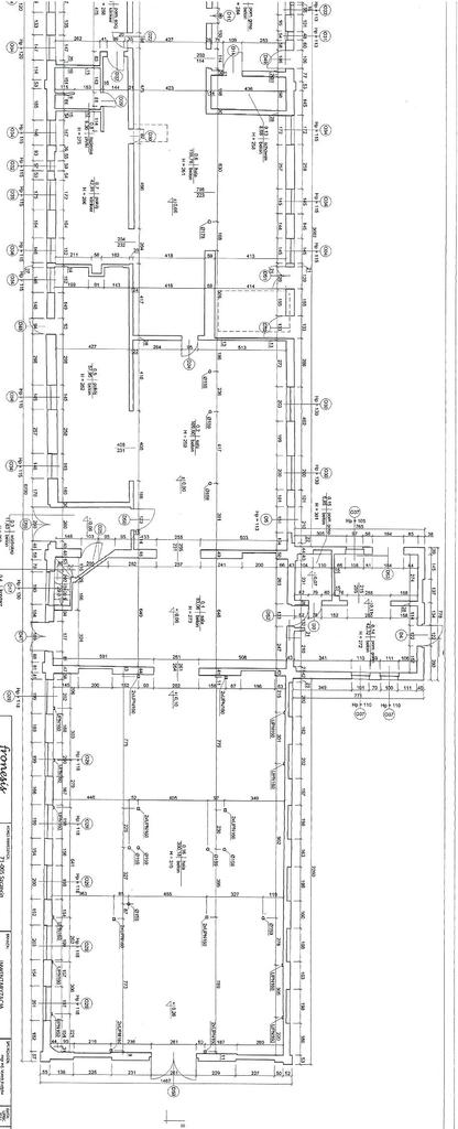
Kompleks hal magazynowych do wynajęcia
Hale murowane, dostępne miejsca postojowe przed halą oraz plac manewrowy- ogrodzony

Hala o powierzchni 898,41 m2 wysokości 2,6- 3 m i teren 1351,6m w cenie 20000 zł netto plus vat
poszczególne pomieszczenia:
159 m2 h-2,61m
109,6 m2, h-2,69 m
83 m2 h-2,73 m
300 m2 h-3,15m
plus 2 pokoje 42,91m2 i 57,96 m2
hala przechodzi obecnie adaptację i remont


możliwość wyjęcia łącznie z budynkiem obok 1329,9m2 i 1154m2 terenu za 27 000 zł netto o parametrach

*Największa hala 985 m2 , dostępna przez wysokie bramy z dwóch stron, z poziomu gruntu
*wysokość 5,41 m otwarta powierzchnia bez słupów
*połączenie łącznikiem z halą o powierzchni 249,10 m2 o wysokości 2,54 m (siatka słupów)
mniejsza hala dostępna jest z rampy, są tu też pomieszczenia biurowe (ok 62 m2) i socjalne.
za dotakową opłatą możliwość wynajęcia powierzchni biurowych na poddasz (ok 80 m2 ) oraz piwnicy -236,84 m2 (cena do ustalenia)


hale nieogrzewane


Szczegóły
Rodzaj oferty Wynajem obiektu komercyjnego
Powierzchnia 898 m2
Działka 2250
Cena 20 000 zł (20 zł/m2)
Forma prawna Własność
Rodzaj budynku Magazynowo-biurowy
Rok budowy 1930
Stan budynku Do adaptacji