POWIERZCHNIA (M²)

CENA ZA M²

PIĘTRO

LICZBA POKOI

ROK BUDOWY

RYNEK

NUMER OFERTY

Poprzednia oferta
Powrót
Następna oferta

Nowa inwestycja mieszkań w Policach

Mieszkanie na sprzedaż

Lokalizacja Police
ul. Grunwaldzka
Numer oferty MNI21923
Rodzaj budynku Niski blok
Rok budowy 2026
Materiał Silikat
Liczba pokoi 3
Powierzchnia 65 m2
Cena 567 762 zł

Opis

Zapraszamy do zapoznania się NOWĄ ofertą MIESZKAŃ w standardzie DEWELOPERSKIM zlokalizowanych w Policach.

Inwestycja obejmuje budynek wielorodzinny 3 - piętrowy z windą, składający się z 45 lokali mieszkalnych oraz 2 mniejsze budynki z 4 lokalami mieszkalnymi. Lokale będą posiadać aneks kuchenny lub oddzielną kuchnię.

Na parterze dużego bloku zlokalizowany będzie garaż z miejscami parkingowymi (32 miejsc), natomiast w obrębie osiedla zapewniono 22 miejsca parkingowe "pod chmurką".

Udogodnienia inwestycji:
- teren przyszłej inwestycji to kameralne w pełni zagospodarowane osiedle,
- do wyboru mieszkania o o pow. od ok. 25 m2 do ok. 65 m2,
- możliwość wykupienia miejsca postojowego w garażu lub na zewnątrz budynku za dodatkową opłatą.

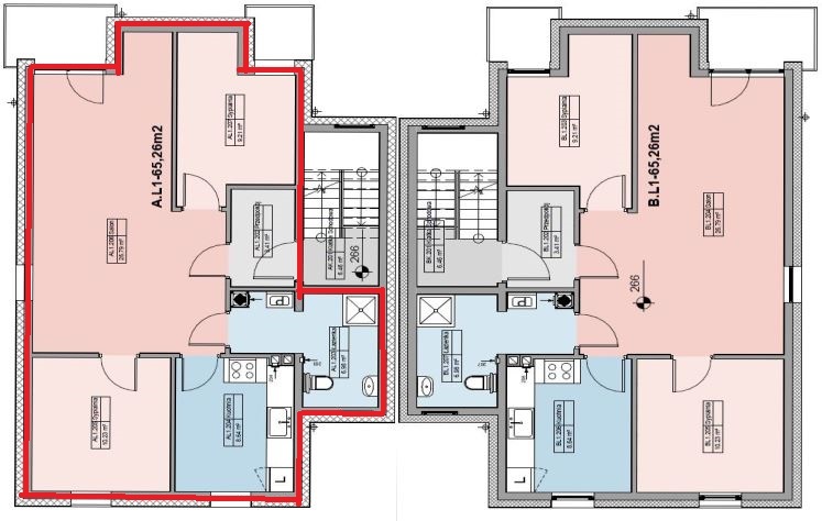
Niniejsza oferta dotyczy mieszkania 3-pokojowego z 2 balkonami położonego na I piętrze budynku mieszkalnego.
Lokal mieszkalny o pow. użytkowej 65,26 m2 składa się z następujących pomieszczeń:
- przedpokój - pow. 3,41 m2,
- salon - pow. 26,79 m2,
- kuchnia - pow. 8,64 m2
- sypialnia - pow. 10,23 m2,
- sypialnia - pow. 9,21 m2,
- łazienka - pow. 6,98 m2.

Wszystkie lokale mieszkalne wykończone będą w następującym standardzie deweloperskim:
- podłoża pod posadzki – betonowe,
- okna PCV bez szprosów 3-szybowe,
- parapety zewnętrzne –stalowe lub PCV,
- parapety wewnętrzne – postforming,
- ściany tynk kl. I – III - bez szpachlowania,
- sufity nietynkowane, nieszpachlowane, płyty kanałowe,
- w korytarzu, pokojach, łazience- przygotowane podłoże pod posadzki,
- biały montaż –we własnym zakresie,
- instalacje elektryczne- okablowanie, gniazda wtykowe i włączniki,
- instalacje sanitarne wodno kanalizacyjne (bez białego montażu),
- instalacja centralnego ogrzewania z grzejnikami
- drzwi wejściowe do mieszkań w cenie lokalu,
- drzwi wewnętrzne – brak,
- klatki schodowe – schody żelbetowe obłożone płytkami, balustrada stalowa, ściany tynkowane i malowane,
- ocieplenie konstrukcji dachu wełną mineralną lub pianą PUR wraz z folią.

MEDIA:
- instalacje- elektryczna, wodna, kanalizacyjna (kompletne),
- centralne ogrzewanie, ciepła woda - z kotłowni gazowej,
- instalacja TV, telefoniczna, internetowa- orurowanie.

Planowany termin zakończenia budowy XII.2025 r.

LOKALIZACJA:
Nowoczesne osiedle zlokalizowane jest w centrum Polic. Dobrze skomunikowane z centrum miasta i nie tylko. Idealna komunikacja, ośrodki dydaktyczne, służba zdrowia, centra handlowe gwarantują zarówno spokój jak i wygodę mieszkania.

W CENIE ZAWARTE JEST 8% VAT, Kupujący zwolniony jest z podatku od czynności cywilnoprawnych u notariusza.

ZAPRASZAMY DO KONTAKTU w celu poznania szczegółów, bądź UMÓWIENIA SIĘ NA PREZENTACJE !

BEZPŁATNIE POMAGAMY W UZYSKANIU KREDYTU HIPOTECZNEGO NA ZAKUP MIESZKANIA.


Szczegóły
Rodzaj oferty Mieszkanie na sprzedaż
Liczba pokoi 3
Liczba pięter 2
Powierzchnia 65 m2
Cena 567 762 zł (8 700 zł/m2)
Forma prawna Własność
Rodzaj budynku Niski blok
Rok budowy 2026
Materiał Silikat
Stan budynku Stan deweloperski