Dom na sprzedaż
| Lokalizacja | Szczecin Gumieńce | |
|---|---|---|
| Numer oferty | GIN20035 | |
| Rok budowy | 1978 | |
| Materiał | Cegła | |
| Liczba pokoi | 8 | |
| Powierzchnia | 250 m2 | |
| Działka | 415 m2 | |
| Cena | 1 500 000 zł |
Przedstawiam Państwu piękny duży dom 213m2
na sprzedaż
Mieści się na starych Gumieńcach.
Oznacza to, że:
teren zabudowy już się nie zmieni,
ta lokalizacja może być dla ciebie bardzo atrakcyjna,
nikt przed twoimi oknami nie zmieni już widoku i nie powstanie nowe osiedle,
nikt nie postawi nowego obiektu,
-Jeśli szukasz ciszy,
-stabilizacji oraz spokoju i
-chcesz zamieszkać na
-prestiżowej dzielnicy to ten
-dom spełnia wszelkie Twoje oczekiwania.
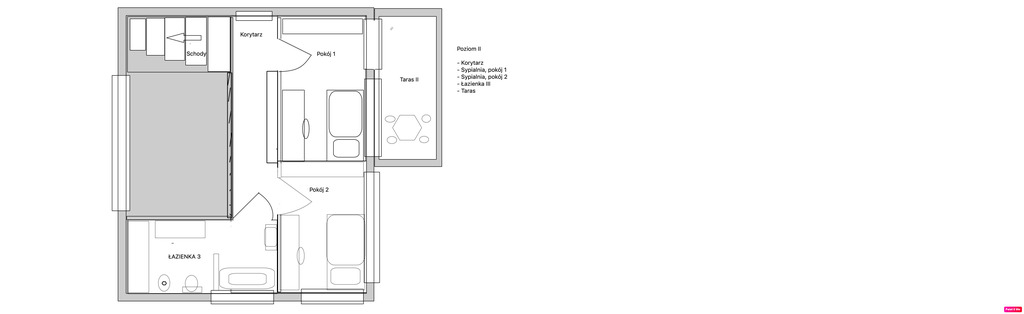
*Pomieszczenia w obiekcie:
Hol
3 sypialnie
3 łazienki
1 pokój gościnny
1 przestronny salon z wyjściem na ogromny taras
2 wyjścia do domu
2 tarasy
2 gabinety
1 przestronna kuchnia z salonem jadalnym.
3 miejsca samochodowe, w tym jeden garaż i dwie zabudowane wiaty.
-Podsumowanie ilości pomieszczeń:
7 pokoi
3 łazienki
3 miejsca samochodowe (garaż)
2 tarasy
Obiekt monitorowany????
Ogrzewanie gazowe i kominkowe.
Piękny widok z okien.
Cisza, spokój a jednocześnie niedaleko i przy centrach
handlowych.
Ogród
2 osobne wejścia do domu
Zapraszam
| Rodzaj oferty | Dom na sprzedaż | ||
|---|---|---|---|
| Liczba pokoi | 8 | ||
| Liczba łazienek | 3 | ||
| Liczba pięter | 1 | ||
| Powierzchnia | 250 m2 | ||
| Działka | 415 | ||
| Cena | 1 500 000 zł (6 000 zł/m2) | ||
| Rok budowy | 1978 | ||
| Droga dojazdowa | Asfaltowa | ||
| Materiał | Cegła | ||
| Stan budynku | Dobry | ||
| Rodzaj ogrzewania | gazowe, elektryczne | ||
| Komunikacja | autobus, tramwaj | ||
| Dostępne w okolicy | restauracja, bank, kościół, sklep, hala sportowa, las, apteka, szkoła, basen, zabudowa niska, plac zabaw, przedszkole, centrum handlowe | ||
| Dodatkowo | alarm    monitoring     |