POWIERZCHNIA (M²)

CENA ZA M²

PIĘTRO

LICZBA POKOI

ROK BUDOWY

RYNEK

NUMER OFERTY

Poprzednia oferta
Powrót
Następna oferta

Emilii Plater - nowa inwestycja

Mieszkanie na sprzedaż

Lokalizacja Szczecin Drzetowo
ul. Emilii Plater
Numer oferty MTN13054
Rodzaj budynku Wysoki blok
Rok budowy 2023
Materiał Bloczki
Liczba pokoi 4
Powierzchnia 77 m2
Cena 938 400 zł

Opis

EMILII PLATER - nowa inwestycja w modernistycznej architekturze:
- kaskadowa forma budynków w przedziale 5 - 10 pięter
- 424 mieszkania o wielkości od 27m2 do 95m2
- cichobieżne windy w każdej klatce schodowej
- miejsca parkingowe w podziemnych garażach
- komórki lokatorskie
- mieszkania na ostatnich piętrach z dużymi tarasami
- plac zabaw dla dzieci oraz dużo zieleni.

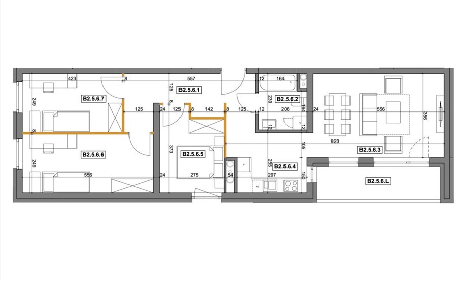
Propozycją sprzedaży jest mieszkanie 4 pokojowe na V piętrze.
Mieszkanie o powierzchni 77,35m2 z loggią o powierzchni 6,83m2.
W skład mieszkania wchodzi:
1/ hol 10,70m2
2/ salon 19,86m2
3/ pokój 9,04m2
4/ łazienka 4,47m2
5/ pokój 13,65m2
6/ pokój 10,35m2
7/ otwarta kuchnia 7,79m2.

Dodatkowo istnieje możliwość zakupu komórki za 15tyś/zł - 28tyś/zł
oraz miejsca postojowego pod budynkiem wraz z boksem rowerowym za 73tyś/zł - 110tyś/zł,
których cena zależy od wielkości.
Wydanie mieszkań już od II kwartału.
Termin przeniesienia własności do 31.12.2024 roku.

KUPUJĄCY NIE PŁACI 2% PODATKU PCC.

Istnieje możliwość wykończenia mieszkania pod klucz,
aż w pięciu wariantach.
W przypadku kupna inwestycyjnego, możliwość oddania w zarządzanie.

Zapraszam do kontaktu.


Szczegóły
Rodzaj oferty Mieszkanie na sprzedaż
Liczba pokoi 4
Liczba łazienek 1
Liczba pięter 6
Powierzchnia 77 m2
Cena 938 400 zł (12 131 zł/m2)
Rodzaj budynku Wysoki blok
Rok budowy 2023
Materiał Bloczki
Stan budynku Idealny
Dodatkowo piwnica    winda