Mieszkanie na sprzedaż
| Lokalizacja |
Szczecin Centrum al. Wyzwolenia |
|
|---|---|---|
| Numer oferty | 406/10212/O | |
| Rodzaj budynku | Apartamentowo-handlowy | |
| Rok budowy | 2022 | |
| Materiał | Beton | |
| Liczba pokoi | 1 | |
| Powierzchnia | 27 m2 | |
| Cena | 427 900 zł |
Zapraszam do zapoznania się z ofertą mieszkania na sprzedaż zlokalizowanego centrum Szczecina w najwyższym budynku w Szczecinie - Hanza Tower.
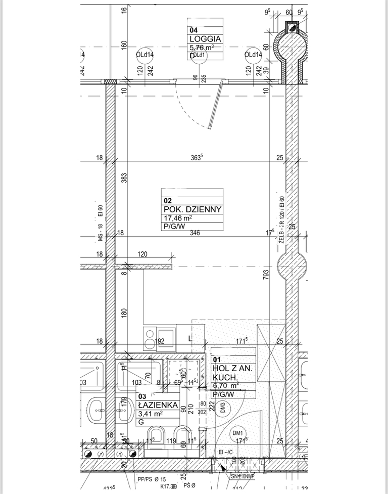
Mieszkanie 1-pokojowe o powierzchni użytkowej 27,63 m2 usytuowane jest na drugim piętrze popularnego apartamentowca i składa się z:
- salonu z wyjściem na loggię (ok. 6 m2)
- aneksu kuchennego,
- przedpokoju,
- łazienki z WC.
Mieszkanie jest w stanie deweloperskim, co daje możliwość urządzenia go według własnych preferencji. Całe mieszkanie jest klimatyzowane - doceni się to w upalne dni.
Budynek oferuje wysoki komfort i luksusowy styl, a mieszkańcy, będą mieli dostęp do strefy relaksu (spa, basen, sauny) i tarasu widokowego na panoramę Szczecina z 27 piętra.
Mieszkanie to nadaje się świetnie jako inwestycja i lokata kapitału. Ścisłe centrum to jedna z najchętniej wybieranych lokalizacji przez osoby pracujące, studentów, jak i osoby odwiedzające nasze miasto.
Polecam szczególnie ze względu na standard wykończenia oraz lokalizację! W mieszkaniu z pewnością odnajdą się single lub pary. Lokal sprawdzi się również jako ochrona kapitału przed inflacją.
Zapraszam do kontaktu!
| Rodzaj oferty | Mieszkanie na sprzedaż | ||
|---|---|---|---|
| Liczba pokoi | 1 | ||
| Liczba łazienek | 1 | ||
| Liczba pięter | 30 | ||
| Powierzchnia | 27 m2 | ||
| Cena | 427 900 zł (15 486 zł/m2) | ||
| Forma prawna | Własność | ||
| Rodzaj budynku | Apartamentowo-handlowy | ||
| Rok budowy | 2022 | ||
| Materiał | Beton | ||
| Rodzaj ogrzewania | co miejskie | ||
| Komunikacja | tramwaj, autobus | ||
| Dostępne w okolicy | fitnes, bank, centrum handlowe, szkoła, basen, restauracja, park | ||
| Dodatkowo | alarm    winda    recepcja    ochrona    monitoring     |