POWIERZCHNIA (M²)

CENA ZA M²

PIĘTRO

LICZBA POKOI

ROK BUDOWY

RYNEK

NUMER OFERTY

Poprzednia oferta
Powrót
Następna oferta

Na sprzedaż nowy Bliźniak w Grzepnicy 100m²

Dom na sprzedaż

Lokalizacja Grzepnica
Numer oferty BON45239
Rok budowy 2023
Materiał Silikat
Liczba pokoi 4
Powierzchnia 120 m2
Działka 375 m2
Cena 799 000 zł

Opis

Planujesz skredytować to marzenie – zadzwoń.

Na sprzedaż bliźniak w stanie deweloperskim w nowoczesnej bryle budynku o powierzchni użytkowej 99,64 m² oraz powierzchni całkowitej 120 m² z działką 375 m².
Inwestycja położona jest Grzepnicy w bezpośrednim sąsiedztwie lasu - "Natura 2000". Do lokalu przynależą 2 miejsca parkingowe z możliwością rozbudowy o wiatę samochodową.

W budynku zostały wykonane gładzie oraz wszystkie zabudowy z płyt gk.

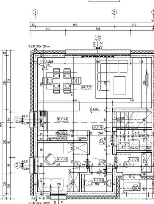
Zestawienie powierzchni pomieszczeń:

Parter:
- Wiatrołap
- Pomieszczenie gospodarcze
- Łazienka
- Otwarta kuchnia
- Salon z jadalnią
- Pokój

Piętro:
- Sypialnia 1
- Sypialnia 2
- Sypialnia 3
- Łazienka

dodatkowo strych użytkowy.

Budynek energooszczędny i ekologiczny wyposażony w pompę ciepła firmy Atlantic
Ogrzewanie podłogowe w całym budynku.



Szczegóły
Rodzaj oferty Dom na sprzedaż
Liczba pokoi 4
Liczba łazienek 2
Liczba pięter 1
Powierzchnia 120 m2
Działka 375
Cena 799 000 zł (8 018 zł/m2)
Forma prawna Własność
Forma prawna gruntu Własność
Rok budowy 2023
Materiał Silikat
Stan budynku Stan deweloperski