Mieszkanie na sprzedaż
| Lokalizacja | Police | |
|---|---|---|
| Numer oferty | MDR20544 | |
| Rodzaj budynku | Niski blok | |
| Rok budowy | 2023 | |
| Materiał | Inny | |
| Liczba pokoi | 4 | |
| Powierzchnia | 81 m2 | |
| Cena | 699 000 zł |
Na sprzedaż ostatnie mieszkanie z ogrodem położone koło Polic w Trzeszczynie ul. Wspólna, znajdujące się w budynku nr B.
- powierzchnia użytkowa 81m2
- ogród - ok. 62m2
- dwa miejsca postojowe w cenie
- okna PCV trzyszybowe
- ogrzewanie podłogowe w całym mieszkaniu
Inwestycja zakończona !
Mieszkanie znajduje się w miejscowości Trzeszczyn ok 3km od Polic, w cichej i spokojnej okolicy, w sąsiedztwie przyrody która zapewni relaks i odpoczynek.
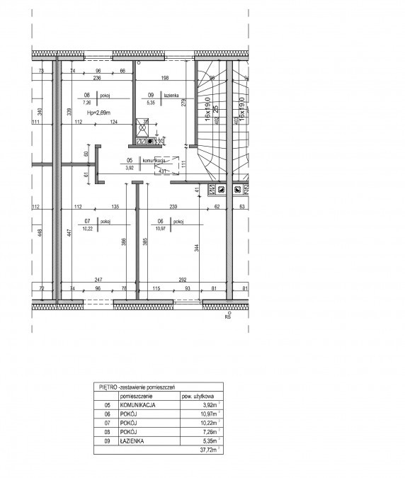
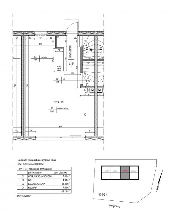
Na parterze znajduje się salon z jadalnią z wyjściem na ogród, aneks kuchenny z oknem oraz wc, na piętrze są trzy sypialnie oraz łazienka.
Mieszkanie wyposażone w piec gazowy 2 - obiegowy do ogrzewania mieszkania i ciepłej wody. Ogrzewanie podłogowe w całym mieszkaniu. Instalacje wewnątrz: elektryczne z włącznikami i kontaktami, wodno-kanalizacyjne oraz gazowa z podejściem do pieca. W standardzie są również schody betonowe, prowadzące na piętro do wykończenia według indywidualnej aranżacji. W cenie mieszkania są dwa miejsca parkingowe.
Media na działce: kanalizacja sanitarna, woda, prąd, gaz.
Sprzedawane w stanie deweloperskim bez podatku PCC - 2%
Nie zwlekaj, zadzwoń i dowiedz się więcej. Oferta dotyczy lokalu nr 3 w budynku nr B.
Mapka nie odzwierciedla faktycznej lokalizacji.
Treść niniejszego ogłoszenia nie stanowi oferty handlowej w rozumieniu Kodeksu Cywilnego. Treść ma charakter informacyjny i zalecamy ich osobistą weryfikację. Kontaktując się z biurem Klient wyraża zgodę na przetwarzanie danych osobowych zgodnie z przepisami ustawy z dnia 29 sierpnia 1997 roku o ochronie danych osobowych / Dz.U.Nr. 133 poz. 883/. Klientowi przysługuje prawo do wglądu do swoich danych osobowych i ich aktualizacji.
| Rodzaj oferty | Mieszkanie na sprzedaż | ||
|---|---|---|---|
| Liczba pokoi | 4 | ||
| Liczba pięter | 2 | ||
| Powierzchnia | 81 m2 | ||
| Cena | 699 000 zł (8 629 zł/m2) | ||
| Forma prawna | Własność | ||
| Rodzaj budynku | Niski blok | ||
| Rok budowy | 2023 | ||
| Materiał | Inny |