Mieszkanie na sprzedaż
| Lokalizacja |
Szczecin Śródmieście-Centrum bł. Królowej Jadwigi |
|
|---|---|---|
| Numer oferty | PTR25514 | |
| Rodzaj budynku | Kamienica | |
| Rok budowy | 1908 | |
| Materiał | Cegła | |
| Liczba pokoi | 1 | |
| Powierzchnia | 29 m2 | |
| Cena | 313 500 zł |
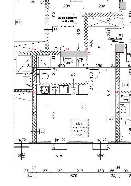
Do sprzedania przestronna kawalerka powstała w wyniku adaptacji poddasza w niskim 3 piętrowej kamienicy w śródmieściu Szczecina. Powierzchnia całkowita to ok. 29,1m2 składają się na nią hall (gres szkliwiony), wyłożony panelami przestronny pokój z aneksem kuchennym, oraz łazienka (gres i glazura) połączona z wc wyposażona w umywalkę i kabinę prysznicową.
Ogrzewanie i ciepła woda z własnego pieca 2 biegowego.
Drzwi antywłamaniowe. Okna PCV oraz dachowe Wokół dużo zieleni, szkoła, przedszkole oraz bardzo dogodny dostęp do komunikacji miejskiej.
Kupujący zwolniony z 2% podatku PCC.
Polecam ze względu na wysoki standard wykonania, atrakcyjną lokalizację. Obecnie trwają prace budowlane, których zakończenie planowane jest na koniec października 2024 r Zamieszczone w ofercie zdjęcia pochodzą z poprzednich inwestycji tego wykonawcy- oferowane mieszkanie będzie wykończone materiałami podobnej klasy.
| Rodzaj oferty | Mieszkanie na sprzedaż | ||
|---|---|---|---|
| Liczba pokoi | 1 | ||
| Liczba łazienek | 1 | ||
| Liczba pięter | 3 | ||
| Powierzchnia | 29 m2 | ||
| Cena | 313 500 zł (10 773 zł/m2) | ||
| Forma prawna | Własność | ||
| Rodzaj budynku | Kamienica | ||
| Rok budowy | 1908 | ||
| Materiał | Cegła | ||
| Stan budynku | Do drobnego remontu | ||
| Dodatkowo | internet    telewizja kablowa     |