POWIERZCHNIA (M²)

CENA ZA M²

PIĘTRO

LICZBA POKOI

ROK BUDOWY

RYNEK

NUMER OFERTY

Poprzednia oferta
Powrót
Następna oferta

60 m2, 3 pok., os. Kaliny, parter do remontu

Mieszkanie na sprzedaż

Lokalizacja Szczecin os. Kaliny
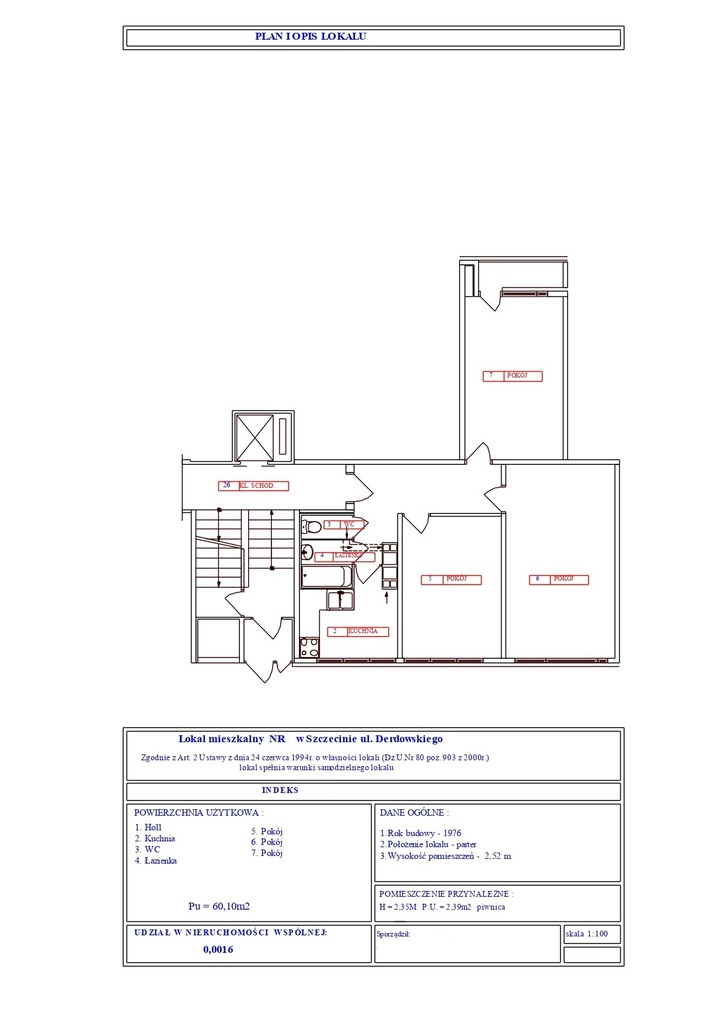
ul. Hieronima Derdowskiego
Numer oferty 405/10212/O
Rodzaj budynku Wysoki blok
Rok budowy 1976
Materiał Wielka Płyta
Liczba pokoi 3
Powierzchnia 60 m2
Cena 439 000 zł

Opis

Szukasz przestronnego mieszkania w bardzo dobrej lokalizacji i cenie, które będziesz mógł zaaranżować według własnego uznania?
Ta oferta jest właśnie dla Ciebie!


Lokal o całkowitej powierzchni 60,10 m2. Mieszkanie zlokalizowane na parterze wieżowca z lat 70 z wielkiej płyty - Osiedle Kaliny. Wyremontowana elewacja całego budynku i klatka schodowa. Co istotne przed budynkiem mamy bardzo dużo ogólnodostępnych miejsc parkingowych co wyklucza nam problem parkowania.

Idealne miejsce dla osób ceniących sobie lokalizację w spokojnym miejscu jednocześnie bardzo blisko ścisłego centrum miasta (10 minut samochodem lub kilka przystanków komunikacji miejskiej)! W pobliżu m.in.: centrum handlowe (Galeria Turzyn), kino, siłownie i fitness, sklepy, apteki, banki, przychodnie lekarskie, lokale  gastronomiczne, usługowe, żłobki, przedszkola, szkoły, licea, uczelnie,  kościoły. Przystanki kilku linii autobusowych (75, 86, 53, 60, 98, 521, 529) znajdują się w odległości kilkuset metrów, dzięki czemu szybko dostaniemy się praktycznie w każde miejsce w mieście!

Mieszkanie w stanie do kapitalnego remontu.
Spółdzielcze własnościowe prawo do lokalu - istnieje możliwość zakupu przez osoby spoza UE!


Na powierzchnię 60,10 m2 składają się (wymiary podane w przybliżeniu, plan lokalu jest widoczny na jednym ze zdjęć):
* Pokój 1 - 17,5 m2,
* Pokój 2 - 13,5 m2 - z wyjściem na balkon - 2,0 m2
* Pokój 3 - 12,0 m2,
* oddzielna kuchnia - 5,5 m2,
* łazienka - 2,0 m2,
* toaleta - 1,0 m2,
* korytarz - 9,0 m2

Dodatkowo do dyspozycji właściciela piwnica (2,4 m2).

Wysokość pomieszczeń 252 cm. Czynsz do spółdzielni wynosi obecnie 570 PLN (w tym wliczone są zaliczki na ogrzewanie, wodę, odpady, fundusz remontowy, eksploatacja, podatek). Ogrzewanie i ciepła woda z sieci miejskiej.

Zainteresowała Cię ta oferta? Nie czekaj, umów się na prezentację!

Świadectwo charakterystyki energetycznej - zapotrzebowanie na energię:

EU - użytkową (kWh/m2*rok): 88.07; EK - końcową (kWh/m2*rok): 122.53; EP - nieodnawialną energię pierwotną (kWh/m2*rok): 102.64; EC02 - Wielkość emisji CO2 (t C02/m2*rok): 0.03; UOZE - Udział odnawialnych źródeł energii w zapotrzebowaniu na energię końcową [%]: 0.00;


Szczegóły
Rodzaj oferty Mieszkanie na sprzedaż
Liczba pokoi 3
Liczba łazienek 1
Liczba pięter 9
Powierzchnia 60 m2
Cena 439 000 zł (7 304 zł/m2)
Forma prawna Spółdzielcze własnościowe prawo
Rodzaj budynku Wysoki blok
Rok budowy 1976
Materiał Wielka Płyta
Rodzaj ogrzewania co miejskie
Komunikacja autobus, tramwaj
Dodatkowo winda