POWIERZCHNIA (M²)

CENA ZA M²

PIĘTRO

LICZBA POKOI

ROK BUDOWY

RYNEK

NUMER OFERTY

Poprzednia oferta
Powrót
Następna oferta

Ul. Rodziewiczówny 3pok. 55m2 + loggia

Mieszkanie na sprzedaż

Lokalizacja Szczecin Niebuszewo
Numer oferty SWN31731
Rodzaj budynku Niski blok
Rok budowy 1930
Materiał Cegła
Liczba pokoi 3
Powierzchnia 54 m2
Cena 438 000 zł

Opis

Polecam do sprzedaży mieszkanie 3 pokojowe położone na Niebuszewie przy ul. Rodziewiczówny w budynku z lat 30-tych po remoncie, elewacja docieplona i pomalowana na pastelowy kolor, klatka schodowa odświeżona, stan techniczny bardzo dobry.
Dwa mieszkania na piętrze, czysto i cicho.

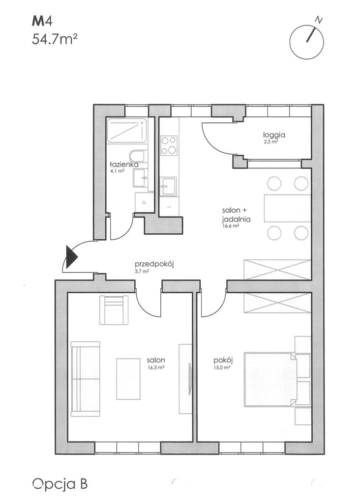
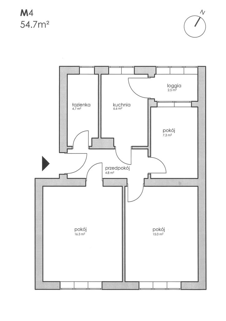
Mieszkanie położone na wysokim parterze, ma powierzchnię 54,75 m2 w skład której wchodzą:
- salon 16,3 m2,
- sypialnia 15,0 m2,
- pokój 7,3 m2,
- kuchnia 6,6 m2,
- łazienka 4,7 m2,
- przedpokój 4,8 m2,
- dodatkowo loggia 2,5 m2 .
Do mieszkania przynależy piwnica o powierzchni około 12,0 m2.

Mieszkanie do remontu,  istnieje możliwość przebudowy i aranżacji wnętrza, przykładowe projekty w ofercie za zdjęciami.
Wymienione instalacje wodna i kanalizacyjna, instalacja grzewcza miejska. Źródło ciepła woda z bojlera gazowego.
Okna wymienione na PCV, nowe drzwi wejściowe. Niski czynsz administracyjny około 480zł.

Oferta godna polecenia ze względu na położenie, blisko środków komunikacji miejskiej, sklepów, szkół i przedszkoli, w bliskiej okolicy targowisko miejskie Mahattan.
Zapraszam na prezentację, klucze w biurze.


Szczegóły
Rodzaj oferty Mieszkanie na sprzedaż
Liczba pokoi 3
Liczba łazienek 1
Liczba pięter 3
Powierzchnia 54 m2
Cena 438 000 zł (8 000 zł/m2)
Forma prawna Własność
Rodzaj budynku Niski blok
Rok budowy 1930
Materiał Cegła
Rodzaj ogrzewania co miejskie
Komunikacja autobus, tramwaj
Dostępne w okolicy szkoła, centrum handlowe, bank, przychodnia lekarska, bazarek, apteka, plac zabaw, przedszkole