Mieszkanie na sprzedaż
| Lokalizacja |
Szczecin os. Przyjaźni 26 Kwietnia |
|
|---|---|---|
| Numer oferty | CIT25100 | |
| Rodzaj budynku | Wysoki blok | |
| Rok budowy | 1974 | |
| Materiał | Wielka Płyta | |
| Liczba pokoi | 2 | |
| Powierzchnia | 45 m2 | |
| Cena | 389 000 zł |
*** TYLKO U NAS ***
Mieszkanie 2- pokojowe położone na Osiedlu Przyjaźni, w VIII-piętrowym budynku z wielkiej płyty z 1974 r. Budynek docieplony, z windą.
Osiedle ładnie zagospodarowane zielenią, w najbliższej okolicy dostępne sklepy, szkoła, przedszkole, biblioteka, usługi. Atrakcyjna lokalizacja do zamieszkania "dla siebie" jak i pod inwestycję. Doskonała komunikacja z centrum miasta.
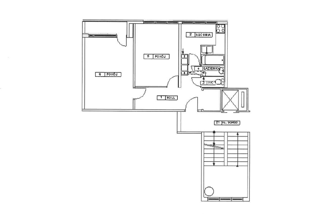
Na powierzchnię 45,3 m2 składają się:
- pokój dzienny ok.15 m2 z wyjściem na balkon
- pokój/sypialnia ok.12 m2
- kuchnia ok.5,6 m2 ( z wyjątkiem lodówki bez wyposażenia)
- łazienka z wanną w glazurze i terakocie ok.2 m2 (pozostaje pralka)
- oddzielne wc ok.0.8 m2
- przedpokój ok.9 m2 z przestronną wnęką na szafę/ garderobę.
Funkcjonalny układ pomieszczeń, do każdego osobne wejście z przedpokoju.
Wszystkie media poza energią elektryczną i mutimediami są wliczone w opłatę czynszową, która wynosi ok. 540 zł. (ogrzewanie i ciepła woda z sieci miejskiej).
Spółdzielcze własnościowe prawo do lokalu mieszkalnego bez księgi wieczystej ( można bez problemu założyć).
Zapraszam na prezentację. Szybki termin wydania.
| Rodzaj oferty | Mieszkanie na sprzedaż | ||
|---|---|---|---|
| Liczba pokoi | 2 | ||
| Liczba łazienek | 1 | ||
| Liczba pięter | 8 | ||
| Powierzchnia | 45 m2 | ||
| Cena | 389 000 zł (8 587 zł/m2) | ||
| Forma prawna | Spółdzielcze własnościowe prawo | ||
| Rodzaj budynku | Wysoki blok | ||
| Rok budowy | 1974 | ||
| Droga dojazdowa | Asfaltowa | ||
| Materiał | Wielka Płyta | ||
| Stan budynku | Dobry | ||
| Dodatkowo | telewizja kablowa    piwnica    winda     |