Dom na sprzedaż
| Lokalizacja | Mierzyn | |
|---|---|---|
| Numer oferty | ROY03422 | |
| Rok budowy | 2024 | |
| Materiał | Silikat | |
| Liczba pokoi | 6 | |
| Powierzchnia | 145 m2 | |
| Działka | 438 m2 | |
| Cena | 1 279 000 zł |
Na sprzedaż bliźniak położony w bardzo atrakcyjnej lokalizacji - Mierzyn, nieopodal szkoły ! Dom posiada już odbiory budowlane, druga połowa już sprzedana.
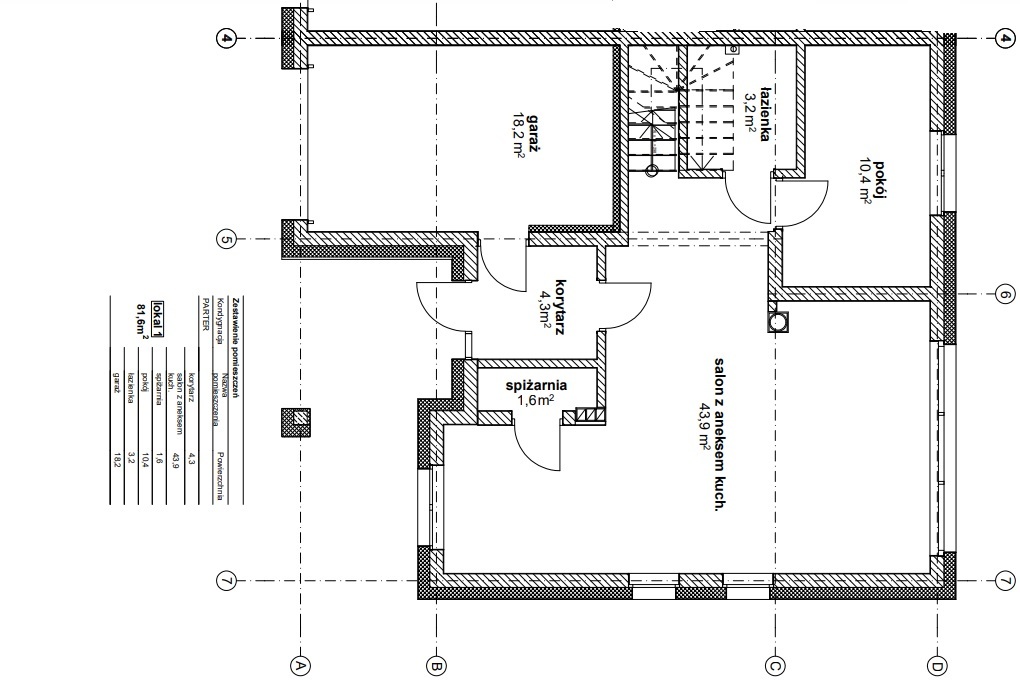
na powierzchnię użytkową 145,1 mkw skłądają się:
PARTER:
- Salon z aneksem kuchennych
- korytarz
- spiżarnia
- pokój
- łazienka
- garaż
PIĘTRO:
- 3 sypialnie
- korytarz
- łazienka
- pralnia
- garderoba
Nieruchomość wybudowana z bardzo dobrych materiałów. Znajduje się w świetnej lokalizacji - nieopodal szkoły. Dookoła znajdują się nowo wybudowane domy jednorodzinne.
Zapraszamy na prezentację
| Rodzaj oferty | Dom na sprzedaż | ||
|---|---|---|---|
| Liczba pokoi | 6 | ||
| Liczba łazienek | 2 | ||
| Liczba pięter | 1 | ||
| Powierzchnia | 145 m2 | ||
| Działka | 438 | ||
| Cena | 1 279 000 zł (8 752 zł/m2) | ||
| Forma prawna | Własność | ||
| Rok budowy | 2024 | ||
| Droga dojazdowa | Utwardzona | ||
| Materiał | Silikat | ||
| Stan budynku | Bardzo dobry | ||
| Rodzaj ogrzewania | gazowe | ||
| Dodatkowo | ogród     |