Mieszkanie na sprzedaż
| Lokalizacja | Szczecin Gumieńce | |
|---|---|---|
| Numer oferty | VSZ21447 | |
| Rodzaj budynku | Apartamentowo-handlowy | |
| Rok budowy | 2023 | |
| Materiał | Silikat | |
| Liczba pokoi | 1 | |
| Powierzchnia | 38 m2 | |
| Cena | 344 375 zł |
Super oferta pod wynajem!
Ofertą sprzedaży jest lokal usytuowany na nowo powstałym osiedlu na Gumieńcach. Nowoczesny siedmiopiętrowy budynek, wyposażony jest w cichobieżne windy oraz halę garażową znajdującą się w części podziemnej .
Lokale sprzedawane są w stanie deweloperskim. Dla zdecydowanych klientów istnieje możliwość wprowadzenia zmian w projekcie. Planowany termin oddania to pierwszy kwartał 2024 roku.
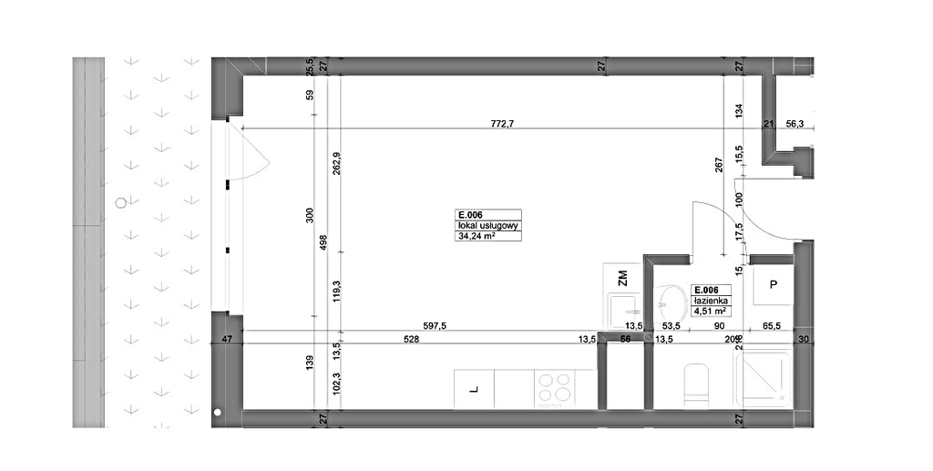
Przedstawiona nieruchomość jest o powierzchni całkowitej 38,75m2 , mieści się na parterze budynku.
Składa;
łazienka 4,51m2,
lokal 34,24m2.
Jest możliwość wykupienia miejsca postojowego znajdującego się w części garażowej budynku.
Powstałe osiedle jest nowoczesnym miejscem zamieszkania w którym dla mieszkańców został zaprojektowany fitness klub z basenem krytym oraz małe centrum handlowo-usługowe ze sklepem spożywczym oraz kawiarnią. Samo osiedle jest bardzo dobrze skomunikowane z centrum miasta. W pobliżu osiedla znajduje się Centrum handlowo-usługowe Atrium MOLO i Auchan. Są ścieżki dla miłośników jazdy rowerowej prowadzące od rozlewisk Odry do Dziewoklicz, stanowiące znakomite miejsce na aktywny wypoczynek.
Nasze biuro oferuje również lokal 2 lub 3 pokojowy. Jesteś zainteresowany? Skontaktuj się z nami, a przedstawimy oferty i pomożemy w wyborze idealnej nieruchomości dla Ciebie!
Zapraszamy do kontaktu.
| Rodzaj oferty | Mieszkanie na sprzedaż | ||
|---|---|---|---|
| Liczba pokoi | 1 | ||
| Liczba pięter | 7 | ||
| Powierzchnia | 38 m2 | ||
| Cena | 344 375 zł (8 887 zł/m2) | ||
| Forma prawna | Własność | ||
| Rodzaj budynku | Apartamentowo-handlowy | ||
| Rok budowy | 2023 | ||
| Materiał | Silikat | ||
| Stan budynku | Idealny | ||
| Dodatkowo | winda     |