POWIERZCHNIA (M²)

CENA ZA M²

PIĘTRO

LICZBA POKOI

ROK BUDOWY

RYNEK

NUMER OFERTY

Poprzednia oferta
Powrót
Następna oferta

Lokal handlowo-usługowy 150 m2 z Najemcami

Lokal usługowy na sprzedaż

Lokalizacja Szczecin Niebuszewo
Numer oferty PTR25484
Rodzaj budynku Niski blok
Rok budowy 1994
Materiał Bloczki
Liczba pokoi 9
Powierzchnia 150 m2
Cena 1 400 000 zł

Opis

Oferta na wyłączność

Sprzedam samodzielny lokal handlowo-usługowy w Szczecina w dzielnicy Niebuszewo. Lokal posiada swoją witrynę przy wejściu. Lokal nadaje się pod prowadzenie każdej działalności gospodarczej np. handel, usługi, produkcja, biuro rachunkowe, kancelarie notarialną, gabinety lekarskie itp. Przed budynkiem dwa miejsca parkingowe.


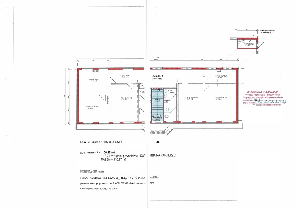
* Powierzchnia całkowita lokalu 150,27 m2


* Lokal składa się z 9 pomieszczeń:

- 6 pomieszczeń biurowych o łącznej powierzchni 94,77 m2, ściany gładzone pomalowane, na podłodze panele, wykładzina biurowa i terakota.
- Dwóch oddzielnych łazienek z WC ( damska i męska) o powierzchni 8,32 m2 i 8,44 m2 uposażony umywalkę i WC, całość w glazurze i terakocie.
- Korytarza o powierzchni 29,26 m2 ściany gładzone malowane na podłodze terakota.
- Kotłownia o powierzchni 3,7 m2, uposażona w piec gazowy.

Lokal został wybudowany w 1999 roku.
- lokal bezczynszowy.
- instalacja alarmowa i sieci internetowej w każdym z pokoi biurowych.

- Ogrzewanie lokalu z własnego ogrzewania, z własnego pieca gazowego.

Wszystkie pomieszczenia biurowe wynajęte.

Możliwość zakupu lokalu wraz z dobrze prosperującymi najemcami.


Zapraszam na prezentację.


Szczegóły
Rodzaj oferty Lokal usługowy na sprzedaż
Liczba pokoi 9
Liczba pięter 4
Powierzchnia 150 m2
Cena 1 400 000 zł (9 316 zł/m2)
Forma prawna Własność
Forma prawna gruntu Własność
Rodzaj budynku Niski blok
Rok budowy 1994
Materiał Bloczki
Stan budynku Dobry
Dodatkowo recepcja    monitoring