Mieszkanie na sprzedaż
| Lokalizacja |
Szczecin Dąbie ul. Przestrzenna |
|
|---|---|---|
| Numer oferty | SWN31641 | |
| Rodzaj budynku | Apartamentowo-handlowy | |
| Rok budowy | 2023 | |
| Materiał | Silikat | |
| Liczba pokoi | 3 | |
| Powierzchnia | 72 m2 | |
| Cena | 899 000 zł |
OFERTA BEZPOŚREDNIA BEZ PROWIZJI
Mam przyjemność zaprezentować Państwu wykończone 3-pokojowe mieszkanie w apartamentowcu Club House Szczecin Dąbie.
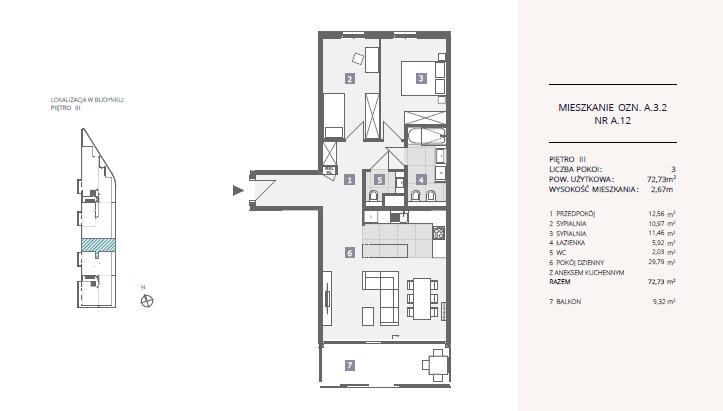
Mieszkanie znajduje się na 3gim piętrze, ma powierzchnię użytkową 72,73 m2 oraz balkon 9,32 m2.
STANDARD NIERUCHOMOŚCI
Wkomponowane bryły oraz adaptacja nowoczesnych rozwiązań technologicznych stworzyły miejsce idealne dla świadomych swoich potrzeb oraz ceniących piękno klientów. Wyraziste struktury, dobór kolorów czy duża płaszczyzna okien to tylko dopełnienie niespotykanej dotąd na szczecińskim rynku architektury. Niebanalna bryła budynku, przemyślany układ balkonów i funkcjonalny rozkład w każdym z lokali stały się wizytówką naszej inwestycji. Dobór materiałów budowlanych oraz wykończeniowych to dodatki, które dopełniają całości nietuzinkowego szczecińskiego projektu. W ślad za wyglądem idą również wysoki poziom izolacji akustycznej oraz termicznej, co z kolei podnosi komfort chwil spędzanych w mieszkaniu z niesamowitymi widokami
O NIERUCHOMOŚCI:
Niepowtarzalne apartamenty w sercu miejskiego żeglarstwa. Dysponując doświadczeniem w segmencie luksusowych nieruchomości mieszkalnych
chcieliśmy przygotować następną inwestycję w równie nietuzinkowym miejscu jak ją poprzedzające. Postawiliśmy sobie pytania gdzie sami byśmy chcieli mieszkać. Braliśmy pod uwagę
miejsce, układ komunikacyjny oraz walory jakie niosły za sobą rozpatrywane miejsca. Nie bez znaczenia była dla nas tożsamość oraz to co bije nam mocno w sercach czyli żeglarstwo. Dużo zieleni, świetnie skomunikowane miejsce, niepozbawione zalet miejskiej aglomeracji. Wkomponowane bryły oraz adaptacja nowoczesnych rozwiązań technologicznych stworzyły miejsce idealne
dla świadomych swoich potrzeb oraz ceniących piękno klientów. Wyraziste struktury, dobór kolorów czy duża płaszczyzna okien to tylko dopełnienie niespotykanej dotąd na szczecińskim rynku architektury. Niebanalna bryła budynku, przemyślany układ balkonów i funkcjonalny rozkład w każdym z lokali stały się wizytówką naszej inwestycji. Dobór materiałów budowlanych oraz wykończeniowych to dodatki, które dopełniają całości nietuzinkowego szczecińskiego projektu. W ślad za wyglądem idą również wysoki poziom izolacji akustycznej oraz termicznej, co z kolei podnosi komfort chwil spędzanych w mieszkaniu z niesamowitymi widokami.
Przemyślane rozwiązania architektoniczne i otaczająca zieleń to nie jedyne atuty inwestycji. Na przyszłych właścicieli lokali czekają funkcjonalne mieszkania, estetyczne zagospodarowanie użytkowego parteru budynku, zbilansowana liczba miejsc parkingowych i liczne udogodnienia dla osób z niepełnosprawnościami czy rodzin z dziećmi. Wśród nich znajdują się cichobieżne windy, bezprogowy dostęp do nieruchomości oraz szereg zabezpieczeń dostępu do budynku. Czy można wymarzyć sobie lepszą przestrzeń?
Wszyscy mieszkańcy mają do swojego indywidualnego użytkowania przygotowane przestronne balkony oraz ogródki przydomowe.
To z nich każdy będzie miał możliwość podziwiania nietuzinkowej przyrody oraz zacumowanych i przepływających nieopodal jachtów. Powierzchnie balkonów przygotowaliśmy w taki sposób by stały się one integralną częścią spotkań w gronie znajomych oraz rodziny. Standard w jakim je przygotowaliśmy umożliwi korzystanie z nich zarówno podczas chłodnych poranków (deska kompozytowa w standardzie) jak i późnych wieczorów (każdy balkon ma przygotowane gniazdo elektryczne oraz wyjście na kinkiety). Każdy budynek to też cichobieżna nowoczesna winda a każde z mieszkań przygotowane jest to montażu klimatyzacji i wykorzystania jego potencjału za pomocą smartfona.
ATUTY:
BAZPIECZNE OSIEDLE Bezpieczne, monitorowane i ogrodzone osiedle z systemem monitoringu. Mieszkania na parterze przygotowane do montażu rolet zewnętrznych oraz systemu alarmowego.
BLISKOŚĆ TERENÓW ZIELONYCH Wyjątkowo zielona okolica i bezpośrednie sąsiedztwo jeziora Dąbie oraz mariny sprzyjają rekreacji i wypoczynkowi.
DOSKONAŁA LOKALIZACJA Zielona okolica w pobliżu terenów rekreacyjnych oraz świetna komunikacja z centrum miasta.
Zdjęcia przestawiają wykończone mieszkania, cena za wykończenie od 3500 zł / m2
Zapraszam na prezentację.
| Rodzaj oferty | Mieszkanie na sprzedaż | ||
|---|---|---|---|
| Liczba pokoi | 3 | ||
| Liczba łazienek | 1 | ||
| Liczba pięter | 5 | ||
| Powierzchnia | 72 m2 | ||
| Cena | 899 000 zł (12 360 zł/m2) | ||
| Forma prawna | Własność | ||
| Forma prawna gruntu | Własność | ||
| Rodzaj budynku | Apartamentowo-handlowy | ||
| Rok budowy | 2023 | ||
| Materiał | Silikat | ||
| Rodzaj ogrzewania | co miejskie | ||
| Komunikacja | autobus | ||
| Dostępne w okolicy | szkoła, przedszkole, fitnes, restauracja | ||
| Dodatkowo | winda    monitoring     |