POWIERZCHNIA (M²)

CENA ZA M²

PIĘTRO

LICZBA POKOI

ROK BUDOWY

RYNEK

NUMER OFERTY

Poprzednia oferta
Powrót
Następna oferta

Do wynajęcia powierzchnia biurowa na Pomorzanach

Wynajem lokalu usługowego

Lokalizacja Szczecin Pomorzany
Numer oferty BON44934
Rodzaj budynku Budynek biurowy
Rok budowy 2004
Materiał Inny
Liczba pokoi 5
Powierzchnia 139 m2
Cena 3 900 zł

Opis

Przedmiotem oferty jest powierzchnia biurowa zlokalizowana na I piętrze budynku przy ul. Zygmunta Chmielewskiego na Pomorzanach, o łącznej powierzchni 139,82m².

BUDYNEK
Położony w pierwszej linii zabudowy. Dojazd asfaltowy. Teren zamknięty. Dobrze skomunikowane miejsce z centrum miasta.

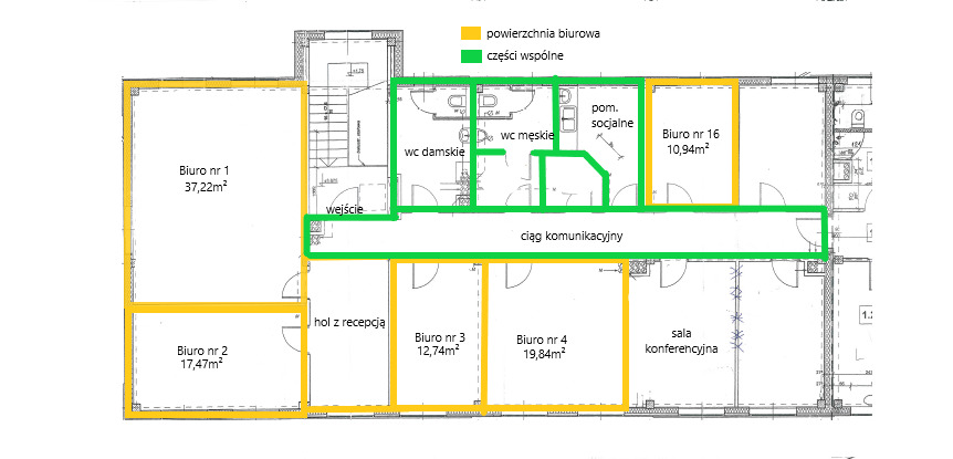
POWIERZCHNIA
Na wyłączną do użytku powierzchnię składają się:
- biuro nr 1 - 37,22 m²
- biuro nr 2 - 17,47 m²
- biuro nr 3 - 12,74 m²
- biuro nr 4 - 19,84 m²
- biuro nr 16 - 10,94 m²

- hol z recepcją - 14,38 m² (opcjonalnie)
Umeblowanie w cenie najmu.

W skład części wspólnych o łącznej powierzchni 41,61m² wchodzą:
- toaleta damska
- toaleta męska
- ciąg komunikacyjny
- pomieszczenie socjalne

Dodatkowo, w razie potrzeby, udostępniana może być również sala konferencyjna.

PARKING
Przy budynku znajdują się dwa przynależne miejsca postojowe w cenie najmu. Istnieje możliwość wynajęcia kolejnych miejsc w cenie 150zł/miesiąc od sąsiadującej firmy.

OPŁATY
3900zł netto +VAT
Opłaty eksploatacyjne:
GAZ ZIMA - ok. 1500zł
GAZ LATO - ok. 50zł
PRĄD - wg zużycia
WODA - ok. 100zł
ODPADY - ok. 100zł
SOLID - ok. 10zł

UDOGODNIENIA
- klimatyzacja
- system alarmowy
- monitoring / ochrona
- rolety antywłamaniowe
- duża ilość gniazdek elektrycznych
- przestronne, jasne biura w neutralnej kolorystyce
- własna recepcja
- możliwość wynajęcia dodatkowych miejsc postojowych

Zapraszam na prezentacje!


Szczegóły
Rodzaj oferty Wynajem lokalu usługowego
Liczba pokoi 5
Liczba pięter 1
Powierzchnia 139 m2
Cena 3 900 zł (27 zł/m2)
Rodzaj budynku Budynek biurowy
Rok budowy 2004
Materiał Inny
Stan budynku Bardzo dobry
Rodzaj ogrzewania gazowe