POWIERZCHNIA (M²)

CENA ZA M²

PIĘTRO

LICZBA POKOI

ROK BUDOWY

RYNEK

NUMER OFERTY

Poprzednia oferta
Powrót
Następna oferta

2. pokoje na skraju Puszczy Bukowej

Mieszkanie na sprzedaż

Lokalizacja Szczecin os. Bukowe
ul. Seledynowa
Numer oferty INW31171
Rodzaj budynku Niski blok
Rok budowy 1989
Materiał Wielka Płyta
Liczba pokoi 2
Powierzchnia 49 m2
Cena 440 550 zł

Opis

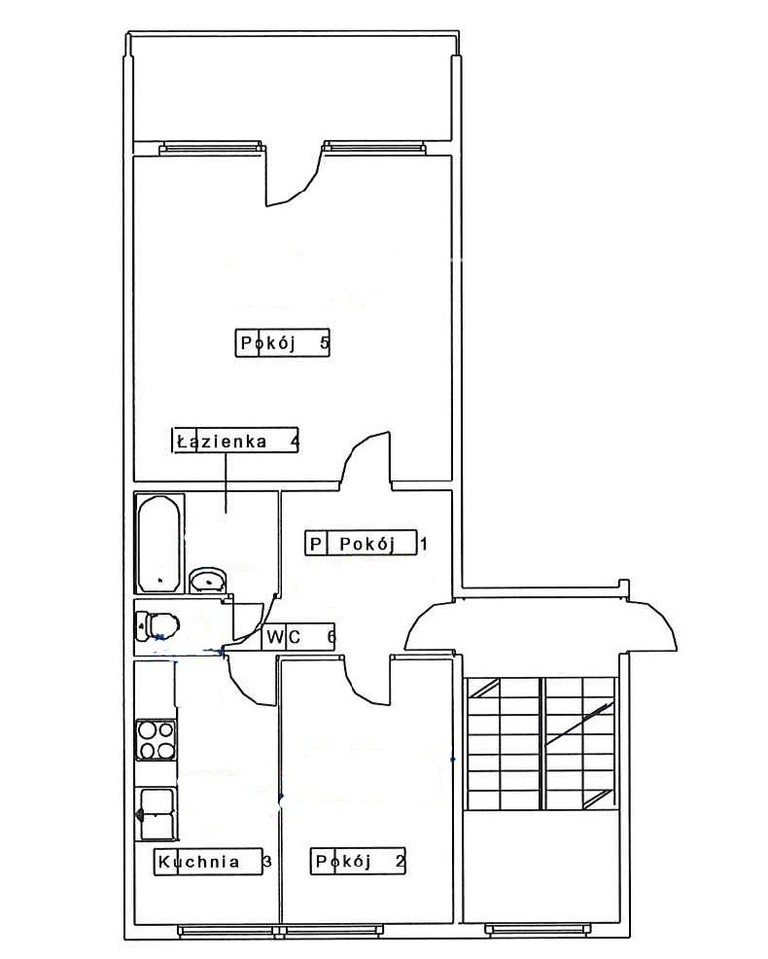
Przedmiotem oferty jest przyjazne 2. pokojowe mieszkanie o powierzchni 49,50 m2, znajdujące się na 4.piętrze niskiego budynku na skraju Osiedla Bukowego przy ul. Seledynowej w Szczecinie, w otoczeniu przepięknej Puszczy Bukowej.

W skład mieszkania wchodzą:
- duży pokój z wyjściem na balkon – ok 22 m2 (balkon ok 6m2)
- pokój – ok 10 m2
- kuchnia – ok 8m2
- łazienka z wanną – ok 3,5 m2
- toaleta - 1 m2
- przedpokój - ok 6,5 m2
 
Do mieszkania przynależy piwnica (4,8 m2)

Czynsz wynosi około 700 zł w tym fundusz remontowy, oświetlenie części wspólnych, utrzymanie czystości, wywóz śmieci, zaliczki za wodę i ogrzewanie. Dodatkowo prąd według zużycia.
Ogrzewanie oraz ciepła woda pochodzi z sieci miejskiej. Budynek ma nową elewację i ocieplenie.
Mieszkanie jest ciche, ciepłe i słoneczne.

Lokal jest po remoncie, w budynku zostały wymienione piony wodno-kanalizacyjne.

Przed blokiem znajdują się bezpłatne miejsca parkingowe.
Lokal jest bardzo dobrze skomunikowany z centrum miasta, w pobliżu przystanki autobusowe wielu linii, a także szybki wyjazd na S3.

Bardzo ciekawa lokalizacja, w bliskim zasięgu ścieżki rowerowe, Puszcza Bukowa z jednej strony, z drugiej Park Leśny Klęskowo, boiska, klub tenisowy, szkoły, przedszkola, place zabaw a także sklepy  dużych sieci handlowych – Biedronka.

Mieszkanie idealne na start lub jako inwestycja.

Polecam i zapraszam na prezentację.


Szczegóły
Rodzaj oferty Mieszkanie na sprzedaż
Liczba pokoi 2
Liczba łazienek 1
Liczba pięter 4
Powierzchnia 49 m2
Cena 440 550 zł (8 900 zł/m2)
Forma prawna Własność
Rodzaj budynku Niski blok
Rok budowy 1989
Materiał Wielka Płyta
Rodzaj ogrzewania co miejskie
Komunikacja autobus
Dostępne w okolicy las, bank, sklep, restauracja, Żłobek, szkoła, apteka, przedszkole, szpital, plac zabaw, przychodnia lekarska, zabudowa niska