Mieszkanie na sprzedaż
| Lokalizacja |
Szczecin os. Bukowe ul. Brązowa |
|
|---|---|---|
| Numer oferty | BON44713 | |
| Rodzaj budynku | Wysoki blok | |
| Rok budowy | 1990 | |
| Materiał | Wielka Płyta | |
| Liczba pokoi | 3 | |
| Powierzchnia | 63 m2 | |
| Cena | 499 000 zł |
Przedstawiam ofertę atrakcyjnego mieszkania zlokalizowanego na jednym z ładniejszych osiedli prawobrzeża - Osiedlu Bukowym.
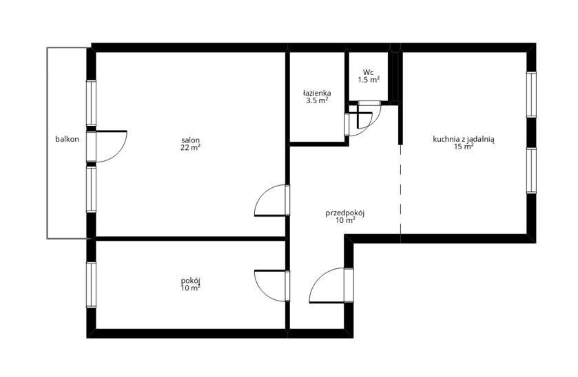
Na powierzchnię 62,2m2 składają się: salon 22m2, sypialnia 10m2, oraz kuchnia połączona z jadalnią 15m2, łazienka 3,5m2, Wc i przedpokój. Pierwotnie były to 3 pokoje z osobną kuchnią.
Salon z dużym balkonem (z którego widok na osiedle i Puszczę Bukową zapiera dech) i sypialnia od słonecznej strony południowej. Mieszkanie znajduje się na dziewiątym piętrze, jest środkowe i ciepłe, dzięki czemu właściciel ma co roku zwroty za ogrzewanie.
Na niemal całej podłodze (poza łazienką i toaletą) jednakowe, bardzo dobrej jakości panele, ściany malowane. W jadalniani i przedpokoju boazeria. W części kuchennej, łazience i toalecie kafle na ścianach. Nowoczesna zabudowa kuchenna 2-letnia, wyposażona w zmywarkę, płytę indukcyjną, piekarnik.
W mieszkaniu nie ma gazu, ciepła woda i ogrzewanie pochodzą z instalacji miejskiej. W budynku znajduje się obszerna nowa winda. Na każdym piętrze są tylko dwa mieszkania, co jest rzadkością w wysokich blokach.
Stan prawny: pełna własność, czynsz w wysokości 830 zł, przynależna piwnica.
Miejsce jest doskonale skomunikowane - 100m do pętli autobusowej, a w najbliższej okolicy znajdują się sklepy, żłobki, przedszkola, szkoły, place zabaw, liczne zielone miejsca wypoczynku.
Zapraszam do obejrzenia.
| Rodzaj oferty | Mieszkanie na sprzedaż | ||
|---|---|---|---|
| Liczba pokoi | 3 | ||
| Liczba łazienek | 1 | ||
| Liczba pięter | 10 | ||
| Powierzchnia | 63 m2 | ||
| Cena | 499 000 zł (7 920 zł/m2) | ||
| Forma prawna | Własność | ||
| Rodzaj budynku | Wysoki blok | ||
| Rok budowy | 1990 | ||
| Materiał | Wielka Płyta | ||
| Stan budynku | Dobry | ||
| Dodatkowo | internet    telewizja kablowa    piwnica    winda     |