POWIERZCHNIA (M²)

CENA ZA M²

PIĘTRO

LICZBA POKOI

ROK BUDOWY

RYNEK

NUMER OFERTY

Poprzednia oferta
Powrót
Następna oferta

Do wynajęcia ok 1900m2 hali z biurami.

Wynajem obiektu komercyjnego

Lokalizacja Warzymice
Numer oferty GAN21804
Rodzaj budynku Magazynowo-biurowy
Rok budowy 2019
Powierzchnia 1900 m2
Działka 4300 m2
Cena 31 000 zł

Opis

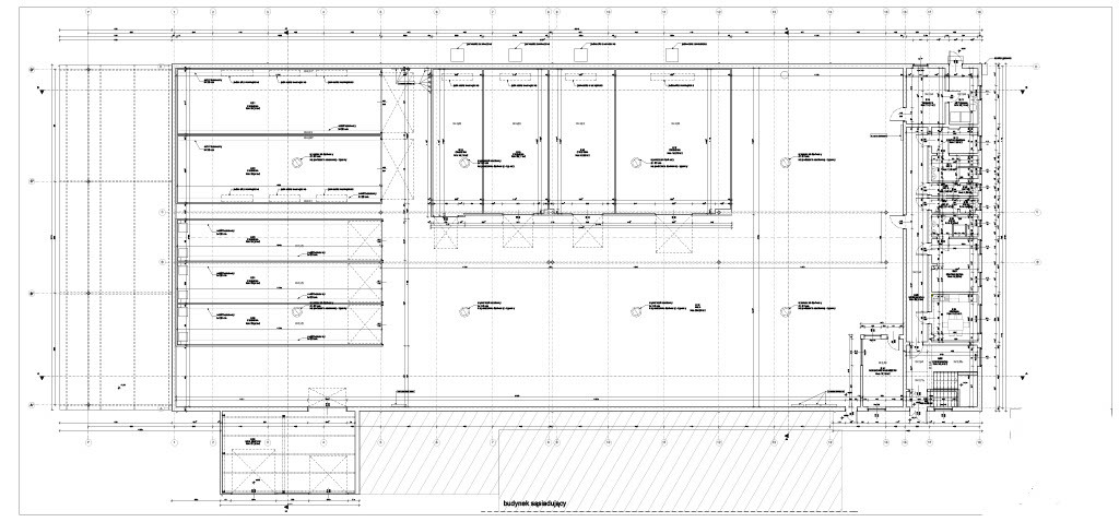
Do wynajęcia hala produkcyjno- magazynowa o pow. ponad 1900m2. Na tę powierzchnię składają się: część produkcyjno -magazynowa 1631m2 ( 28m x 60m), część socjalna 136m2, częśc biurowa 134m2. Wysokośc hali 6m. Posadzka niepylna. Na hali dostęp światła dziennego. Częśc biurowa składa się z 5 pokoi biurowych, sali konferencyjnej po 2 toalety damskie i męskie. Część socjalna składa się m.in. z kuchni, szatni damskiej i męskiej, po 3 toalety damskie i męskie. Wjazd do obiektu przez bramę 3x 4m oraz dok rozładunkowy 3x3m. Części socjalno-biurowe oraz część hali jest ogrzewana - gazowo. W obiekcie znajduje się 10 chłodni o łącznej pow. ok. 760m2 ( wielkości od 50 do 150m2), które mogą pozostać do wykorzystania.
Budynek w części biurowo-socjalnej wentylowany grawitacyjnie, w pomieszczeniach sanitarnych oraz aneksie kuchennym wentylacja mechaniczna. Część magazynowa wentylowana grawitacyjnie wywietrzakami cylindrycznymi na podstawie dachowej.
Na wyposażeniu pozostaje agregat prądotwórczy o mocy 150kW.
Aktualnie dostępne jest 50kW. Możliwość zwiększenia mocy.
Hala jest konstrukcji murowanej. Na terenie dostępne miejsca parkingowe. Możliwy dojadz TIR, plac manewrowy. Teren ogrodzony, monitorowany.
Na terenie obowiązuje MPZP - zabudowa produkcyjno-usługowa.
Polecam i zapraszam na prezentację.


Szczegóły
Rodzaj oferty Wynajem obiektu komercyjnego
Powierzchnia 1900 m2
Działka 4300
Cena 31 000 zł (16 zł/m2)
Forma prawna Własność
Rodzaj budynku Magazynowo-biurowy
Rok budowy 2019
Droga dojazdowa Asfaltowa
Stan budynku Bardzo dobry
Rodzaj ogrzewania gazowe
Dodatkowo ochrona    monitoring